David H. Koch Center, NewYork-Presbyterian Hospital

Project Details

Project Name
David H. Koch Center, NewYork-Presbyterian Hospital
Location
1283 York AvenueNew YorkNY10065
Project Types
Healthcare
Shared By
Pei Cobb Freed
Project Status
Built
Year Completed
2018
Style
Modern
Size
734,000 ft²
Certifications & Designations
LEED Gold
Team
Architect: HOK
Medical Architect: Ballinger
Consulting Architect (building envelope and lobby): Pei Cobb Freed & Partners

Project Description

At the NewYork-Presbyterian David H. Koch Center, patients receive integrated care and undergo complex procedures on an outpatient basis. With a focus on the human experience, the program provides a comprehensive suite of services for patients in a contemporary and soothing environment. The design of the leading-edge facility is the result of a collaboration among HOK as architect, Ballinger as medical architect and Pei Cobb Freed & Partners as consulting architect for building envelope and lobby.

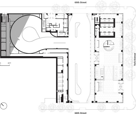
Patients enter through a soaring, light-filled space with unobstructed paths to a central reception desk and self-registration kiosks, from which they proceed to elevators that carry them to clinical floors. Clinical support spaces are patient-focused and efficient, with the flexibility to accommodate future technologies and changes in patient care. The facility’s primary services include outpatient surgery, endoscopy, interventional radiology, diagnostic imaging, radiation oncology, infusion, and digestive disease treatments.

Within the 40-foot-high lobby, a sweeping mezzanine offers a multipurpose gathering space with food service and a direct connection to the adjoining Wellness Center. An open stair invites access to the more intimate upper mezzanine, providing a comfortable “living room” for patients and their families.

An all-glass facade was suggested by the fact that the exterior edge of the building is primarily circulation space. The insertion of a wood screen into the triple-glazed assembly and application of a frit pattern on the inner surface of the outer pane give the curtain wall its distinctive character, achieving richness and variety in a highly sustainable form.

SITE
At York Avenue and 68th Street on the Upper East Side of Manhattan

COMPONENTS
734,000 ft2 / 68,000 m2 gross area; ambulatory care center for cancer care, treatment of digestive diseases, outpatient surgery, interventional radiology, and diagnostic imaging; maternity ward; health and wellness center; conference center; dining facilities; underground parking

CLIENT
NewYork-Presbyterian Hospital

PCF&P SERVICES
Building envelope and lobby

SUSTAINABILITY
LEED Gold: Healthcare

AWARDS
Healthcare Design Showcase: Highest Award
Healthcare Design Magazine, 2019

Top-Five Project Worldwide, Healthcare and Wellness
Architizer A+ Awards, 2019

Best Healthcare Project
Engineering News Record New York, 2018

American Architecture Award
Chicago Athenaeum, 2020

Healthcare Architecture Award
Architecture MasterPrize, 2019

Rethinking the Future Award: Institutional
European Healthcare Design, 2020

Salus Award for Healthcare Design (Over 25,000 sqm)
European Healthcare Design, 2019

Salus Award for Design Innovation (for Quality Improvement)
Greater New York Construction User Council, 2019

Rethinking the Future Award: Institutional
RTF Architecture Awards, 2020

Building Team Silver Award
Building Design & Construction, 2020

Upcoming Events

  • Design Smarter: Leveraging GIS, BIM, and Open Data for Better Site Selection & Collaboration

    Live Webinar

    Register for Free
  • Slate Reimagined: The Surprising Advantages of Slate Rainscreen Cladding

    Webinar

    Register Now
  • The State of Residential Design Today: Innovations and Insights from RADA-Winning Architects

    Webinar

    Register for Free
All Events