Darryl Carter Showroom and Studio

Project Details

Project Name
Darryl Carter Showroom and Studio
Location
1320 9th Street NWWashingtonDCUnited States20001
Project Types
Project Status
Built
Year Completed
2012

Project Description

The project consists of a new retail showroom and design studio for Darryl Carter, one of Washington’s premier interior designers. Wanting a space to reflect his personality, Carter teamed with WNUK SPURLOCK Architecture to renovate a deteriorated mid 19th-century building and carriage house, portions of which date back to the Civil War.

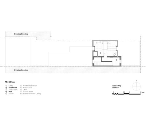
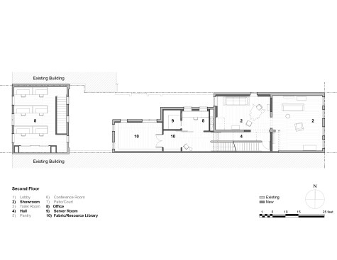
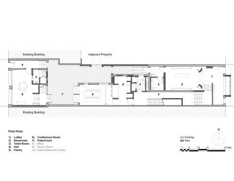
Working alongside Carter, WNUK SPURLOCK would provide the architecture to showcase his brand and compliment his products. The main building contains the showroom, organized to encourage one to meander and engage the products within. Located in the carriage house the design studio overlooks an outdoor courtyard suitable for entertainment and display space.

A primary goal of the owner was to retain as much of the original fabric of the building as possible. Existing masonry walls were refurbished with aged brick left rough at the edges, while smooth crisp walls define new spaces and provide contrast. Salvaged timbers supplement the structure while a reclaimed limestone arch creates a dramatic focal point in the Lobby. The floors were milled from reclaimed wood from a former embassy. All building systems were replaced with modern equipment.

The result is a delicate balance of new and old that references the history of the building while providing provocative spaces to showcase the owner’s products and inspire future creations.

Upcoming Events

  • Slate Reimagined: The Surprising Advantages of Slate Rainscreen Cladding

    Webinar

    Register Now
  • The State of Residential Design Today: Innovations and Insights from RADA-Winning Architects

    Webinar

    Register for Free
  • Specifying Smarter with Copper-Clad Aluminum (CCA) Metal-Clad Cable

    Webinar

    Register for Free
All Events