Dahlonega Residence

Project Details

Project Name
Dahlonega Residence
Location
BethesdaMD
Project Types
Single Family
Project Status
Built
Year Completed
2013
Size
1,850 ft²

Project Description

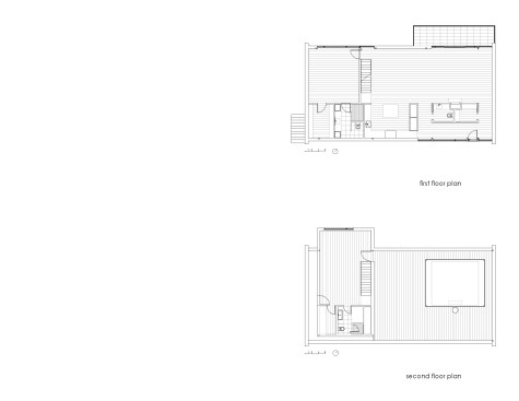
Bracketing an existing ranch home with a conceptual wicket of weathering steel, the project is articulated as a portal to the landscape. An exterior living area is provided within the open space beneath the wicket as a counter-pressure to the steep sloped site. The main level is veiled in stucco, acid etched, and transparent glass, providing layered tectonic contrast to the void space above. The upper level glass cube and burned wood volume further the juxtaposition of the heavy and light.

Upcoming Events

  • Design Smarter: Leveraging GIS, BIM, and Open Data for Better Site Selection & Collaboration

    Live Webinar

    Register for Free
  • Slate Reimagined: The Surprising Advantages of Slate Rainscreen Cladding

    Webinar

    Register Now
  • The State of Residential Design Today: Innovations and Insights from RADA-Winning Architects

    Webinar

    Register for Free
All Events