Custom Prefab House

Project Details

Project Name
Custom Prefab House
Location
LincolnMA
Project Types
Single Family
Shared By
dmadsen
Project Status
Built
Size
3,230 ft²

Project Description

Our clients loved their existing mid-century modern house and had initially hoped to renovate and add on to the house to improve the tight spaces and planning inefficiencies. The house had extensive deferred maintenance, however, and a review of renovation strategies concluded that it would be more cost effective to start from scratch using a custom prefabrication project delivery method.

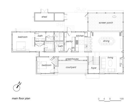
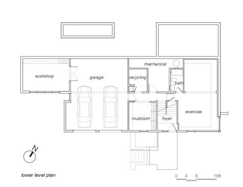
Although zoning restrictions required working within the existing footprint, the form of the house above the foundations was completely reconceived. The addition of an expansive office and listening room on a mezzanine level freed up the main floor for more spacious living areas, more functional kitchen, master and guest suites, and a south-facing courtyard. The courtyard separates the bedroom and living areas, and brings much-needed winter sun deep into the heart of the house. The new house has a more varied three-dimensional character, with a twenty-foot high living space and dramatic sculptural steel staircase set in a three-story glass-walled foyer.

The overtly modern and crisply orthogonal design of the house lent itself easily to the efficiencies of modular prefabrication. The house is composed of nine modules that were built in a factory in Pennsylvania. All modules were custom prefabricated complete with wiring, plumbing, fire suppression system, lighting, wall and ceiling finishes, doors and windows, insulation, trim, etc. — virtually everything except wood flooring and custom cabinetry that was built locally. Prefabrication took two months after the building permit was issued, and assembly of the modules on site took only three days. Interior finishes and stitching together of exterior finishes took an additional four months, a substantially shortened time frame relative to traditional residential construction.

Upcoming Events

  • Design Smarter: Leveraging GIS, BIM, and Open Data for Better Site Selection & Collaboration

    Live Webinar

    Register for Free
  • Slate Reimagined: The Surprising Advantages of Slate Rainscreen Cladding

    Webinar

    Register Now
  • The State of Residential Design Today: Innovations and Insights from RADA-Winning Architects

    Webinar

    Register for Free
All Events