Crook | Cup | Bow | Twist

Project Details

Project Name
Crook | Cup | Bow | Twist
Location
NicasioCA
Project Types
Shared By
dmadsen
Project Status
Built
Size
450 ft²

Project Description

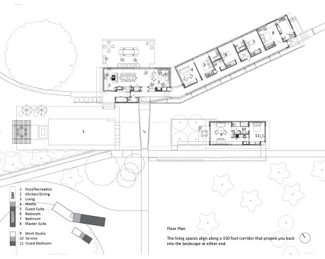
The kitchen of this 3,200 square foot home in Nicasio, California cleverly downplays most of its practical functions, not by hiding them, but by seamlessly integrating them with the surrounding indoor and outdoor areas. What emerges is less of a well-define traditional “kitchen” than a series of fluid spaces integral to movement through the house. In this sense, one doesn’t look at the kitchen as an isolated room so much as through it to something far better beyond.

The prime functions sit behind a high counter, which has a backing of steel plate with a natural blued finish that strongly anchors the dining area while maintaining openness and view. We carefully selected this exposed sheet steel for its Rothko-like, painterly and organic feel. Behind the counter are the stove, sink prep area, and entry station for keys and packages. This working area is directly adjacent to the door to the pool terrace and casual family entry and is open on all sides, with views out into the landscape in every direction.

To maintain this amount of glass and view, we shifted all of the kitchen storage to a wall of Douglas Fir cabinetry adjacent to the dining area. This cabinet piece houses the refrigerator, wine storage, and pantry as well as a service counter and bar. The bar’s translucent glass backsplash divides the kitchen from an exterior mudroom used to collect objects found on hikes across the 40 acre site. As this outdoor “museum” of found objects changes, so too do the shadows they caste through this glass. The main cabinet then continues through the space becoming the threshold into the living areas from the front door as well as housing the fireplace and hearth in the adjacent living room.

Overall, the project’s intent is to intensify an awareness of the natural systems that surround us, particularly their tendency towards movement and change, in order to foster a constant desire to move through the building and back out into the surrounding landscape. The title of the project, Crook | Cup | Bow | Twist (categories of wood deformation) refers conceptually to the latent potential energy in all natural systems towards movement and highlights our often futile attempts to fight against it. By making present these gestures of the natural world, we set in motion new ways of reading and experiencing our environment — a critical agenda for the next generation of sustainable architecture. As an integral piece of this home, we tried to design even the most functional space with this ethos in mind. The kitchen is the knot at the center of movement through the house as well as frame for our focus on the natural world beyond.

Upcoming Events

  • Design Smarter: Leveraging GIS, BIM, and Open Data for Better Site Selection & Collaboration

    Live Webinar

    Register for Free
  • Slate Reimagined: The Surprising Advantages of Slate Rainscreen Cladding

    Webinar

    Register Now
  • The State of Residential Design Today: Innovations and Insights from RADA-Winning Architects

    Webinar

    Register for Free
All Events