Crane Residence

Project Details

Project Name
Crane Residence
Project Types
Single Family
Project Scope
New Construction
Shared By
Joris Verhoeven
Project Status
Built
Year Completed
2018
Style
Modern

Project Description

This modern home is located in a rural expansion area near Tilburg. A quiet place surrounded by open meadows and fields. A few years ago, a covered terrace was designed for the previous home of these clients. This west-facing terrace is made of stucco with an interior of wood and was their favorite place of the house. They expressed the wish that this terrace should be the inspiration for the design of their new house. This eventually resulted in this dwelling with a pleated stucco framework filled with wood.

The orientation of the lot was leading in the design. Since the front of the house is the west side, this would mean that the desired terrace would look out onto the street. By placing back the terrace in relation to the front facade and introducing two brick walls, a semi-open patio has been created. This intervention guarantees privacy on the terrace.

With its robust appearance, the bricks walls form a great contrast with the sleek stucco work and with the horizontal lines it counterbalances the static verticality of the wood. The dark traditionally hand-moulded bricks sometimes contain shades of light brown that match the color of the wood.

The sculptural lining of the stucco is reinforced by the modest detailing. The nuances with the natural materials masonry and wood ensure contact with the earth and balances the asymmetrical design into a modest dwelling.

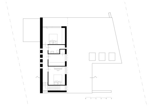
The program of the home is designed to be lifetime-resistant. The ground floor contains the entire living program required for a two-person household. Upstairs there are three more bed- and guestrooms and an extra bathroom.

Upcoming Events

  • Build-to-Rent Conference

    JW Marriott Phoenix Desert Ridge

    Register Now
  • Reimagining Sense of Place: Materiality, Spatial Form, and Connections to Nature

    Webinar

    Register for Free
  • Homes that Last: How Architects Are Designing a Resilient Future

    Webinar

    Register Now
All Events