Craftsman Style Spec Home for Orlando Historic District

Project Details

Project Name
Craftsman Style Spec Home for Orlando Historic District
Location
Fern CreekOrlandoFL
Project Types
Single Family
Project Scope
New Construction
Shared By
Guitarch
Project Status
On the Boards/In Progress
Year Completed
2020
Style
Historic
Size
2,800 ft²
Team
Contractor/Owner: Edward Soccaras
Room or Space
Architectural Detail

Project Description

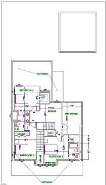
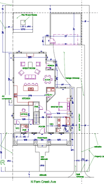
This 2800 SF design is under construction as of 2/27/2020 on Fern Creek east of downtown Orlando, Florida. The builder requested a Craftsman-style home. This one has some Dutch Colonial, but the trick was to get a perfectly symmetrical elevation working with a contemporary plan. Here the Master Suite is downstairs with an Office and the main living area is a Great Room in the back open to the Kitchen and single Dining area. Three bedrooms and a small den are situated on the second floor. The site did not allow an attached garage but the historic board required a detached garage for this district.

Upcoming Events

  • Design Smarter: Leveraging GIS, BIM, and Open Data for Better Site Selection & Collaboration

    Live Webinar

    Register for Free
  • Slate Reimagined: The Surprising Advantages of Slate Rainscreen Cladding

    Webinar

    Register Now
  • The State of Residential Design Today: Innovations and Insights from RADA-Winning Architects

    Webinar

    Register for Free
All Events