Craftsman Design Dream Home

Project Details

Project Name
Craftsman Design Dream Home
Location
DavisCA
Project Types
Shared By
dmadsen
Project Status
Built
Size
5,200 ft²

Project Description

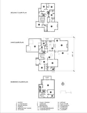
This project was built as infill on one of the last empty lots centrally located to the desirable downtown area in Davis, California. The location has a high walkability index. As one the last available lots in the area, it also had a high price tag for land. The intention was to maximize the value of the land by utilizing the property to its fullest capacity. Maximizing value as always included a pleasing floor plan and overall design.

The City of Davis has placed many progressive restraints on land use for single family home construction. There are limits on lot coverage, floor area to lot size ratio, usable open space minimums, a variety of setbacks and a restriction on the number of bedrooms per lot, limit 5. Due to a history of slow and/or no growth public sentiments, land costs are high. To maximize the value of the land, the goal was to maximize the scope of the built environment.

The builder’s infill strategy for suburban single family homes is a traditionally styled, family oriented, 5 bedroom home, with at least one bedroom on the main level. Given the site constraints, a main floor bedroom was difficult to place, but access to upper floor bedrooms was enhanced with the addition of an elevator to the project scope. The site plan consists of a 4 bedroom main home and 1 bedroom accessory structure with full kitchen and bath.

While in the planning phase the designer/builder realized that a basement would provide additional floor area for a bonus room, home theatre or home office. Zoning law also allowed that this space “does not count” against any zoning restrictions. Basements, especially finished and large, are a rarity in California, but are becoming more common in cities with high land values and land shortages.

Upcoming Events

  • Build-to-Rent Conference

    JW Marriott Phoenix Desert Ridge

    Register Now
  • Reimagining Sense of Place: Materiality, Spatial Form, and Connections to Nature

    Webinar

    Register for Free
  • Homes that Last: How Architects Are Designing a Resilient Future

    Webinar

    Register Now
All Events