Crafton Hills College, Learning Resource Center

Project Details

Project Name
Crafton Hills College, Learning Resource Center
Location
YucaipaCAUSA
Architect
Steinberg Hart
Project Types
Education
Shared By
Steinberg Hart
Project Status
Built
Year Completed
2010
Size
58,500 ft²
Certifications & Designations
Team
President & CEO: David Hart
Senior Associate: Gilbert Rocca
Senior Associate: Vikas Shrestha
Design Director: Michael Miller
Designer: Francisco Osorio

Project Description

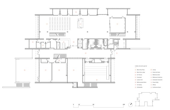
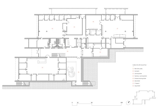
Subsequent to the development of a full campus master plan, programming was provided for a number of buildings on the Crafton Hills College campus, including the Learning Resource Center. The design team was intentional about integrating the architecture of the new building with the existing campus vocabulary.

The building combines current Library, Learning Center, and Campus Data Center components into a single structure. Within the Learning Center, students have access to open labs of wired carrels, computer workstations, and reader tables as well as breakout spaces for tutoring and group study. A teaching center for faculty and staff allows users to improve lecture techniques and receive training on utilizing smart classroom components and incorporating technology into their curriculum. Integration of a Gallery and a 100-seat Auditorium finalizes the building’s program, furthering the relationship between the College and the growing community of Yucaipa. The building unifies a complex and varied program using cohesive architectural language that is sympathetic to the strong architecture of the existing campus.

Upcoming Events

  • Design Smarter: Leveraging GIS, BIM, and Open Data for Better Site Selection & Collaboration

    Live Webinar

    Register for Free
  • Slate Reimagined: The Surprising Advantages of Slate Rainscreen Cladding

    Webinar

    Register Now
  • The State of Residential Design Today: Innovations and Insights from RADA-Winning Architects

    Webinar

    Register for Free
All Events