Coyote Camp Sonoma

Project Details

Project Name
Coyote Camp Sonoma
Location
SonomaCA
Project Types
Single Family
Project Status
Built
Year Completed
2016
Size
640 ft²

Project Description

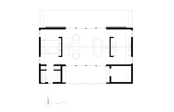
How big a house do you really need on a remote site where much living occurs outdoors? Located in Sonoma County, this 640 square foot cabin was designed to appear as a barn when the sliding wooden doors are closed. When the doors slide open, the house opens up to both sides of the site. The one room house is divided by casework screens that shield the kitchen on one side and a bed inspired by Thomas Jefferson’s bed at Monticello on the other. The house’s exterior cladding is redwood milled from a reclaimed water tank. The roof is rusted steel. The interior walls are re-sawn Douglas fir with concrete floors and a floating sheetrock ceiling. Designed to provide an indoor refuge on a site that celebrates outdoor living, the cabin serves as a welcoming gathering place. In addition to the cabin there is an extensive garden flanked by a bath shed and a sleeping shed. On top of the knoll, a copper tub looks out to Mount St. Helena.

Upcoming Events

  • Design Smarter: Leveraging GIS, BIM, and Open Data for Better Site Selection & Collaboration

    Live Webinar

    Register for Free
  • Slate Reimagined: The Surprising Advantages of Slate Rainscreen Cladding

    Webinar

    Register Now
  • The State of Residential Design Today: Innovations and Insights from RADA-Winning Architects

    Webinar

    Register for Free
All Events