Covenant House

Project Details

Project Name
Covenant House
Location
460 West 41 St.New YorkNY
Architect
FXCollaborative
Project Types
Multifamily
Project Scope
New Construction
Shared By
Madeleine D’Angelo
Project Status
Built
Year Completed
2021
Size
80,495 ft²

Project Description

This project was selected as an Honor winner in the 2022 Residential Architect Design Awards, Specialized Housing category.

“There is a well-balanced juxtaposition between the upper floors—wrapped with smaller windows lending a sense of privacy and intimacy—and the lower floors, filled with wide open common spaces projecting a positive image out onto the streetscape. It is well thought out, and a great example of what supportive housing can mean to its residents and contribute to a neighborhood.” — Juror Brian Loughlin, AIA

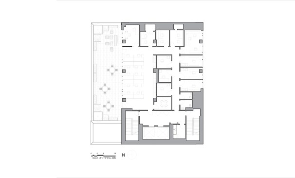
Brooklyn-based FXCollaborative designed this sleek 12-story, brick-clad structure for Covenant House New York, a 50-year-old housing provider that, until now, operated in facilities originally designed for other purposes. Located in the evolving community of Hell’s Kitchen, the new 80,000-square-feet building serves the homeless youth of New York City. The four-story base houses a wide variety of programs to help as many as 1,900 at-risk young adults annually, with the tower above providing individual sleeping rooms and support spaces.

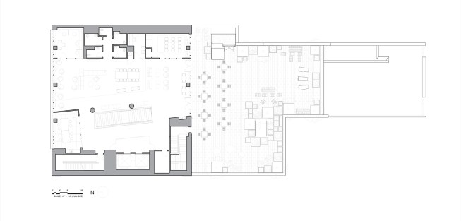
The facility is organized around a central security point just off the sidewalk. A featured wood stair, called the Stoop, welcomes visitors and provides access to the second floor where multiple gathering spaces serve the Covenant House community. The six floors of residential shelter, meanwhile, provide up to 120 beds. Individual bathrooms and bathing rooms offer privacy that respects the gender identity of all residents. The design of the outdoor spaces is just as thoughtful: An expansive, covered first-floor courtyard and a second-floor terrace are inviting hangouts for all, while a fifth-floor terrace at the building’s setback accommodates staff.

The structure’s design balances solidity and transparency in much the same way that the facility provides for the dignity of the individual resident and offers gathering spaces for community. Windows deeply set in the structure’s brick wall express a sturdiness of construction that reflects Covenant House’s mission and aspirations for its residents. The fenestration varies between the base and tower, with wide, extensive windows for the public spaces on the lower floors and individual windows that mark the sleeping rooms in the tower above. Brick, stone, copper, and wood demonstrate these values in built form and promise a bright and durable future for the organization and its residents.


This article appeared in the March 2022 issue of ARCHITECT.

by Anne Quito

On a cool November night in New York, a giddy group streamed through the doors of the newly rebuilt Covenant House New York and saw their new living quarters for the first time. After nine years of planning, designing, and construction, the city’s largest shelter for youth in crisis was ready. “Different, clean, cool, new—upgrade, upgrade, upgrade,” a resident cooed as she settled into her room.

The heartwarming scene was the culmination of a collaboration between Covenant House, a 50-year-old nonprofit that operates shelters for homeless youth in 33 cities, the Brooklyn-based firm FXCollaborative, and the New York developer Gotham. Undeterred by an onerous RFP process, the team forged through bureaucratic and budgetary hurdles to realize a vibrant 12-story shelter that houses up to 150 residents, each for a maximum of six months.

Until the building was completed in 2021, Covenant House New York made due with a hodgepodge campus consisting of a motel, a library, and a former penitentiary along Manhattan’s West Side. In 2016, Gotham negotiated to buy part of Covenant House’s lot for $78 million and build a 47-story mixed-use tower. The deal included delivering a new turnkey building for the nonprofit. “This was more of a chess game because we had to ensure Covenant House’s goals were met as well as ours,” says Bryan Kelly, Gotham’s president of development. The 110-year-old real estate company was eager to add a building to its Hudson Yards portfolio, and Covenant House wanted a better, gender-inclusive environment for the more than 1,400 youths who show up at its doors each year.

Apart from the 60 bedrooms across six floors, Covenant House offers communal spaces, including classrooms, computer rooms, and a walk-in closet filled with professional attire for resident use. The facility also provides places for recreation—a subterranean basketball court—and contemplation—a nondenominational prayer room, a garden, and a music room. There’s also a floor dedicated to an in-house clinic and a mental health center.

“The difference is night and day,” says Angela Howard, senior vice president of facilities and real estate at Covenant House. “We spent a lot of time with the architects and they spent a lot of time being thoughtful about designing a space based on what we needed.”

For one, the design team embraced Covenant House’s mission to provide a dignified haven for young people regardless of sexual orientation or gender expression, especially LGBTQ youth. Bathrooms were a key issue for this population who experience significantly more discrimination and abuse in and out of homeless shelters compared to cis-gendered youth. “One of the earliest things we decided on was to avoid ganged bathrooms and showers,” explains Heidi Blau, FAIA, a partner at FXCollaborative who oversaw the project. “We decided early on that this would be helpful so the youth don’t feel that they’re in juvenile detention,” Howard adds.

The sense of welcome is also reflected in the choice of materials, which didn’t compromise beauty for durability. Eschewing the dispiriting brutality of similar public housing facilities, FXCollaborative selected graffiti-proof Equitone fiber-cement wall panels, sturdy porcelain floor tiles, and hard-wearing carpeting. “Everything has to stand up [to all sorts of stress],” Blau says.

For all the new touches, Covenant House’s history is coded in the building’s color scheme. Shades of blue, yellow, lavender, and lime green were color-matched from a beloved mural in the former residence building. Sections of the painting also reappear as decor throughout the project.

Ultimately, thoughtful architecture can have a profound effect on residents who may be in crisis, says Nick Garrison, FAIA, FXCollaborative’s design director. “I see it as respect,” he explains. “The idea that kids who were sleeping on the pavement coming to a welcoming place can be completely transformative, I hope.”

PROJECT CREDITS
Project: Covenant House New York
Client: Covenant House International
Client Representative: Angela Howard – Covenant House International
Development Partner: The Gotham Organization, New York. David Picket, CEO; Bryan Kelly, President, Development; Simeon Maleh, Executive Vice President, Development; Stephen Strateman, Vice President, Development; Charlie Loskant, Executive Vice President, Construction; Peter Edwards, Project Manager
Architects: FXCollaborative, New York. Dan Kaplan, FAIA (Concept and Master Planning), Heidi Blau, FAIA (partner-in-charge), Nick Garrison, FAIA (design partner), Ann Rolland, FAIA (program advisor) Eric Van Der Sluys (projects manager). Cristina Rodriguez, Alp Bozkurt, Frank Lindemann, Mercedes Armillas, Jodie Quinter, Leslie Infanger, Justyna Murowiec-Chun, Daniel Chilcote, Korantemaa Larbi, Jaehee Lee (Integrated Building and Interior Design team)
Owners Representative: Real Estate deal. Denham Wolf: Jon Denham, Paul Wolf, Andrew Foley, Neelima Panoli, Michael Meola
Building Design and Construction, FF&E: Levien & Company, Envoie Projects
M/E/P Engineer: Cosentini Associates
Structural Engineer: DeSimone Consulting Engineers
Environmental/Geotechnical/Civil Engineer: Langan
Vertical Transportation: VDA
Code: Design 2147 Ltd.
Acoustics: Longman Lindsey
Lighting: Horton Lees Brogden Lighting Design
Landscape: Starr Whitehouse Landscape Architects
Exterior Envelope: Frank Seta & Associates
Food Service: CINI Little International Inc.
Accessibility: Code Consultants, Inc.
Commissioning: Loring Consulting Engineers, Inc.
Fire Alarm: Walter T. Gorman & Associates
Health Clinic Expeditor: Cicero Consulting Associates
Audio Visual Consultant: Sage Audio Visual Technology
Contractor – Design, Bid, Build: Monadnock Construction. David Schloss, Yongjie Jin, Greg Bauso, Anthony O’Haire, Thomas Barker, Bobby Hempfling, John Bissell, Billy Stila
Size: 80,495 gross square feet, 54,441 square feet (zoning floor area)
Stories: 12 (plus mechanical penthouse)
Occupancy Class: I-1; Construction Class 1B
Scope of Services by FXC: Feasibility Study, Programming, Architectural Design, Interior Design, FF&E selection, Documentation and Construction Administration
Sustainability Goals: Maximize energy efficiency, minimize water usage, and employ healthy materials

MATERIALS
Exterior Brick: Belden Brick, Glacier Grey – 16”
Exterior Storefront: YKK YCW 750 and YES 45
Windows: Mannix 6700 Series
Interior Large Porcelain Tile Floor and Walls: Ergon Stone – Grey Flada
Interior Lobby Stair Wood Wall: Rulon International Panel Grille, white oak
Interior Bathroom Tiles: Mosa – floors – Ciot Vogue Ceramica – walls
Cafeteria, Lobby and Courtyard Wall Panels: Eqitone Cement panes
Cafeteria Ceiling Panels: Rulon International –Panel Grille, white oak
Pride Hall Wood Floor: Grato – French Oak
Pride Hall Carpet: Kinetex Foundry
Pride Hall Ceiling panels: Rulon Aluratone 930 – white oak
Gym Floor: Thor Performance Floor – Taraflex
Lobby Furniture: HM Swoop chairs – ERG tables
Cafeteria Seating: Leland Amadeus chairs, ERG tables with custom laminate tops
Welcome Center Furniture: Raaks wall system, HM Swoop sofa, ERG tables and Leland Amadeus chairs
Health Clinic Furniture: Steelcase Convey, Ritter 225 Exam chair
Pride Hall Furniture: Allsteel rock, HM swoop sofa, Kimball tall table, BDI Sector media cabinets,
Residential Room Furniture: Foliot
Residential Lounge Furniture: All Steel Recharge sofa, ERG table
Classroom Furniture: HM Trapezoid tables and Caper chair
Office Furniture: Steelcase Currency
Office Seating: Human Scale Diffrient world chair

Upcoming Events

  • Build-to-Rent Conference

    JW Marriott Phoenix Desert Ridge

    Register Now
  • Reimagining Sense of Place: Materiality, Spatial Form, and Connections to Nature

    Webinar

    Register for Free
  • Homes that Last: How Architects Are Designing a Resilient Future

    Webinar

    Register Now
All Events