Court of Cassation Conference Hall

Project Details

Project Name
Court of Cassation Conference Hall
Location
AnkaraTURKEY
Architect
Desmus
Project Types
Project Scope
New Construction
Shared By
Desmus
Project Status
Built
Year Completed
2020
Style
Modern
Room or Space

Project Description

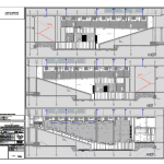
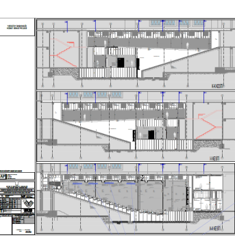
Desmus designers touched the service building, which was built to improve the physical conditions of the Court of Cassation and to gather all units on the same campus, and comfort and elegance met in the 700-seat conference hall.

Services provided are as follows: Theater architecture, acoustics, stage mechanics systems, professional sound-light-video systems project authoring and consultancy.

Upcoming Events

  • Design Smarter: Leveraging GIS, BIM, and Open Data for Better Site Selection & Collaboration

    Live Webinar

    Register for Free
  • Slate Reimagined: The Surprising Advantages of Slate Rainscreen Cladding

    Webinar

    Register Now
  • The State of Residential Design Today: Innovations and Insights from RADA-Winning Architects

    Webinar

    Register for Free
All Events