Country Estate

Project Details

Project Name
Country Estate
Project Types
Single Family
Project Scope
Renovation/Remodel
Project Status
Built
Size
4,620 ft²

Project Description

2015 Residential Architect Design Awards
Renovation
Citation

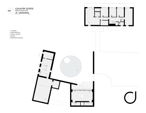
An art collector acquired the 1953 Philip Johnson–designed Wiley Residence in New Canaan, Conn., and hired Westport, Conn.–based Roger Ferris + Partners to lovingly restore it. The firm also added 4,620 square feet of new facilities to accommodate the owner’s artworks and enhance the original swimming pool through an expanded complex of structures. Johnson’s original design had a glass pavilion sitting atop a low stone plinth set into a hill. Roger Ferris + Partners added a complementary stone pool house sunken into an adjacent hillside to embrace the original circular pool; the walls extend to encompass a 19th century barn, which the firm re-clad and repurposed as an art gallery. A new concrete garage at the entrance to the property employs the same restrained simplicity as the rest of the complex and welcomes visitors to the 6.33-acre estate. The resulting complex pays homage to Johnson’s iconic house while thoughtfully extending its simple geometric themes for the larger program. —Edward Keegan, AIA

From the Jury

“I like the composition, and the way the opacity of the barn plays against the transparency of the house.” —Bruce D. Snider

Project Credits

Architect: Roger Ferris + Partners, Westport, Conn.—Roger Ferris, AIA
Project Size: 4,620 square feet
Construction Cost: Withheld

Click here to see all of the winners from the 2015 Residential Architect Design Awards.

Upcoming Events

  • Design Smarter: Leveraging GIS, BIM, and Open Data for Better Site Selection & Collaboration

    Live Webinar

    Register for Free
  • Slate Reimagined: The Surprising Advantages of Slate Rainscreen Cladding

    Webinar

    Register Now
  • The State of Residential Design Today: Innovations and Insights from RADA-Winning Architects

    Webinar

    Register for Free
All Events