CORPORATE OFFICES

Project Details

Project Name
CORPORATE OFFICES
Location
New YorkNYUSA
Project Types
Office
Shared By
Silje Howard
Project Status
Concept Proposal
Year Completed
2015
Style
Modern
Size
60,000 ft²
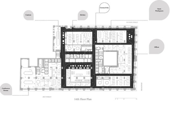
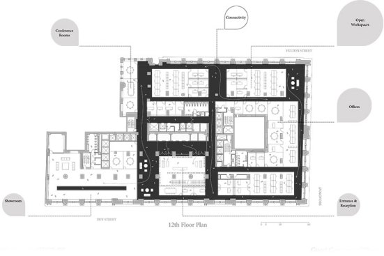
Room or Space
Architectural Detail

Project Description

shortlisted

Our goal for the project was to translate into architectural elements what we read as the main characteristics of fashion, such as the juxtaposition between old and new, and the ever-changing brands’ development specifically its inherent temporariness. We achieved this by treating the existing raw space, a mix of concrete, terracotta and steel, as our permanent backdrop over which we locate the required functions as temporary islands. Our goal is to transmit the sense of a dynamic space that can continuously develop, based on the needs of the program. The floor planes can bend, wrap and ultimately enclose into the required conference rooms and offices. We aim to achieve an overall plan that is uniform and balanced, with no visual hierarchy. We then placed our work spaces around the center core so to leave the perimeter walls untouched and continuous.

Upcoming Events

  • Design Smarter: Leveraging GIS, BIM, and Open Data for Better Site Selection & Collaboration

    Live Webinar

    Register for Free
  • Slate Reimagined: The Surprising Advantages of Slate Rainscreen Cladding

    Webinar

    Register Now
  • The State of Residential Design Today: Innovations and Insights from RADA-Winning Architects

    Webinar

    Register for Free
All Events