Corner Pocket House

Project Details

Project Name
Corner Pocket House
Project Types
Single Family
Shared By
Sara Johnson
Project Status
Built
Year Completed
2017

Project Description

FROM THE ARCHITECTS:

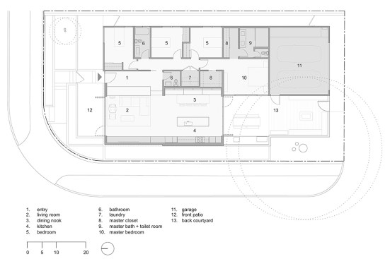
The Corner Pocket House is a complete transformation of a cramped 1950’s bungalow into a modest contemporary dwelling with newly invigorated common spaces. Our clients carefully considered the needs of their five-person family, and requested a high-quality, single-story home of moderate area, a distinct departure from the neighborhood norm, where houses are often exuberantly maxed-out to capitalize on soaring property values.

A variety of challenging physical, experiential, and regulatory forces shaped the design. The house sits in the bottom of a bowl-shaped depression in the terrain, at the corner of a busy suburban intersection. Our client strongly desired to buffer the house from street noise, yet requested large openings between a new living / dining / kitchen space and the outdoors. Local codes severely reduced the available building envelope with increased corner site setbacks, height limits, and ordinances protecting the mature tree onsite. In order to economize the budget, most of the existing house area was to remain as well.

The design strategically resolves these challenges through a series of straightforward moves and simple forms. The house’s long street elevation is buffered by an interior lining of cabinetry, forming a thickened acoustical barrier. Site walls elevate the house from the street, and clerestory windows wash sunlight into the double-height kitchen. Large folding glass doors allow the main common room to be dramatically opened at opposite ends, optimizing light penetration, cross-ventilation, and spatial flow through to the tree-shaded courtyards. To fortify the union between old and new, the existing roof has been flattened and the building finished in smooth white plaster. Finally, a series of vertical cement board fins wrap the street-side corner, thereby reinforcing the movement of turning around the building.

Through clarity and restraint, the house thus resolves its active corner condition, resulting an intimate pocket of luminosity, atmosphere, and serenity.

Upcoming Events

  • Build-to-Rent Conference

    JW Marriott Phoenix Desert Ridge

    Register Now
  • Reimagining Sense of Place: Materiality, Spatial Form, and Connections to Nature

    Webinar

    Register for Free
  • Homes that Last: How Architects Are Designing a Resilient Future

    Webinar

    Register Now
All Events