Cornell University – Rehabilitation of Fernow Hall

Project Details

Project Name
Cornell University – Rehabilitation of Fernow Hall
Location
IthacaNYUSA
Project Types
Education
Shared By
John di Domenico
Project Status
Built
Year Completed
2014
Certifications & Designations
LEED Gold

Project Description

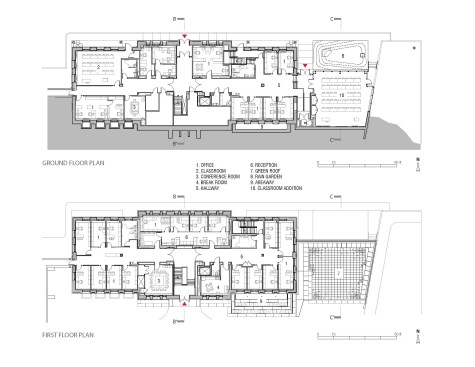
di Domenico + Partners led a large architectural and engineering team to rehabilitate Fernow Hall for Cornell’s College of Agriculture and Life Sciences. The LEED Gold certified facility contains over 30,000 SF of space, including lecture rooms, faculty offices, conference rooms and a classroom addition. This contemporary space has been designed in a sensitive manner to work with the adjoining historic Fernow Hall. The addition contains a series of sustainable initiatives, including a daylit north facing facade, a green roof and a rain garden that allow the students to experiment with xeriscape and sustainable plantings. The project is part of a multi-phased critical maintenance plan for the College of Agriculture and Life Sciences, addressing the need for an innovative instructional and research facility for the 21st century and beyond.

Upcoming Events

  • Design Smarter: Leveraging GIS, BIM, and Open Data for Better Site Selection & Collaboration

    Live Webinar

    Register for Free
  • Slate Reimagined: The Surprising Advantages of Slate Rainscreen Cladding

    Webinar

    Register Now
  • The State of Residential Design Today: Innovations and Insights from RADA-Winning Architects

    Webinar

    Register for Free
All Events