CORE House

Project Details

Project Name
CORE House
Architect
Q4 Architects
Project Types
Single Family
Project Scope
New Construction
Shared By
dmadsen
Project Status
Concept Proposal

Project Description

FROM THE AIA:

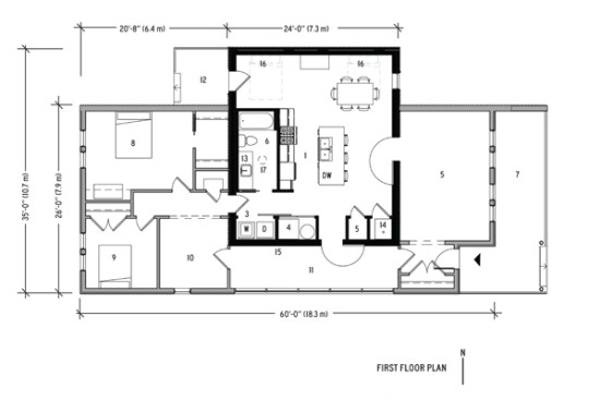
Designed by Q4 Architects, CORE House in Joplin, Mo., is designed to address the local vernacular by combining two single-cell homes: a centrally located “Safe House” acts as the hearth and divides a “Perimeter House”. The Safe House contains all of the functions of ‘home’ that are necessary for a family to recover quickly from disaster and live for an extended period of time until rebuilding is possible. The walls of the Safe House are constructed of filled and anchored carbon-neutral concrete masonry units. Rainwater is collected, stored, and filtered for reuse. Locally sourced building materials were consciously considered so that CORE will have little impact on the progression of climate change, reduce the effects of debris in a natural disaster, and elevate local economies.

Upcoming Events

  • Slate Reimagined: The Surprising Advantages of Slate Rainscreen Cladding

    Webinar

    Register Now
  • The State of Residential Design Today: Innovations and Insights from RADA-Winning Architects

    Webinar

    Register for Free
  • Specifying Smarter with Copper-Clad Aluminum (CCA) Metal-Clad Cable

    Webinar

    Register for Free
All Events