Cope-Gillette Theater – Village Theater

Project Details

Project Name
Cope-Gillette Theater – Village Theater
Location
2710 Wetmore AvenueEverettWAUSA
Shared By
Dan Nelson
Project Status
Built
Year Completed
2015
Certifications & Designations
LEED Silver
Team
Principal Architect: Dan Nelson
Principal Architect: John Jones
Project Architect: Eric Anderson
Project Architect: William Lippens

Project Description

In 2005 the City of Everett acquired property adjacent to the Everett Performing Arts Center, including an existing bank building that was built in 1962. The bank building was a classic example of midcentury modern architecture and had recently been designated a historic structure by the city’s historic preservation commission. Village Theater administrates the Everett Performing Arts Center and in 2010 decided to lease the bank building to turn it into their youth education center. At the same time, the city decided to convert a parking lot between the performing arts center and the proposed youth education center into a city center plaza.
Working concurrently with the landscape architect for the plaza design, the existing bank building renovation was designed to not only accommodate functions for the youth education center, but to also relate to the new plaza as well. The plaza was designed as a link between the two performing arts buildings and acts as an arts oriented public space, accommodating up to 200 people for outdoor performances.
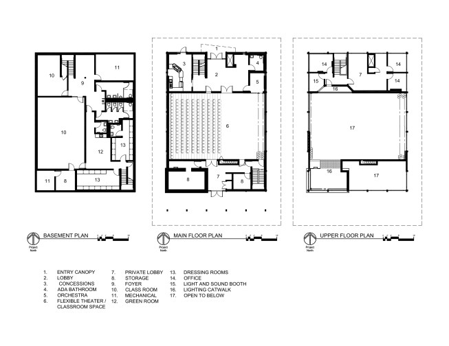
The program for the youth education center included: a black box theater that could be used as an open classroom or as a fixed seat performance venue, an entrance foyer relating to the new public plaza, a bistro to serve the audience members between shows as well as people using the plaza, classrooms and administrative offices for the youth education management.
The existing bank building had a double height banking room and a mezzanine for its offices. The design strategy for the theater was to place the black box theater in the main banking room space and the administrative offices on the mezzanine level. Additional classrooms and the green room were placed in the basement.
The shell of the existing building was preserved and updated to accommodate current seismic and energy codes. The existing exterior tile cladding as well as the roof system were left in place at the request of the historic commission. The interior was gutted and retrofitted to accommodate a state of the art theater. To keep costs down, ceilings were left exposed throughout the structure as was much of the new electrical and mechanical systems.
The new entry off the plaza is defined by a new signage structure that also acts as a way to identify prominent donors to the Kidstage program. The major donors were in the airplane manufacturing business so the signage structure was designed with references to that industry. The theater has since been named in their honor. The donor recognition wall is made up of colored glass discs with the donors names etched in them. The perforations also relates to a colorful reflective glass mosaic wall designed by a prominent Seattle artist.

The project was designed with sustainability in mind. As much of the existing structure as possible was reused to reduce waste. Energy efficient upgrades were made to the mechanical systems. The renovation received a LEED Silver certification for interior renovation. This project earned a NWAIA Merit Award for 2016.

Upcoming Events

  • Design Smarter: Leveraging GIS, BIM, and Open Data for Better Site Selection & Collaboration

    Live Webinar

    Register for Free
  • Slate Reimagined: The Surprising Advantages of Slate Rainscreen Cladding

    Webinar

    Register Now
  • The State of Residential Design Today: Innovations and Insights from RADA-Winning Architects

    Webinar

    Register for Free
All Events