Contemporary Multi-Generation Custom Home Concept

Project Details

Project Name
Contemporary Multi-Generation Custom Home Concept
Location
AustinTX
Project Types
Single Family
Project Scope
New Construction
Shared By
Guitarch
Project Status
Concept Proposal
Year Completed
2007
Style
Modern
Size
5,500 ft²
Team
Architect: John Henry, MasterWorks Design International, Inc.

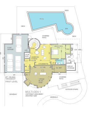
Project Description

A Contemporary design for a family that offers privacy and communal space for several generations. Two entries on both levels with Master Suite, Living, Dining, Kitchen and Secondary Bedrooms on second floor. First floor with Study, Den, Bedrooms and Garages.

Upcoming Events

  • Build-to-Rent Conference

    JW Marriott Phoenix Desert Ridge

    Register Now
  • Reimagining Sense of Place: Materiality, Spatial Form, and Connections to Nature

    Webinar

    Register for Free
  • Homes that Last: How Architects Are Designing a Resilient Future

    Webinar

    Register Now
All Events