CONTEMPORARY HOUSE

Project Details

Project Name
CONTEMPORARY HOUSE
Architect
Plan Bureau
Project Types
Single Family
Shared By
Plan Bureau
Project Status
Concept Proposal

Project Description

Six miles away from Ipswich, the client bought a farmhouse area with three old barns randomly scattered throughout the area.

The architectural concept involved reconstruction of two existing barns and designing a new barn-style residential building forming a contemporary and at the same time traditional farmhouse area. Emphasis is put on lightness in proportions, balance between glazed surfaces and bearing structures, dialog between house interior and nature.

Two traditional farm buildings are planned to be turned into residential premises. The bigger one (333 sq. m.) will house bright indoor swimming pool with lounge zone nearby. Another one (almost 200 sq. m.) will be converted into sports area with table tennis, gym equipment and basketball court.

The decision to construct a new residential building at the former place of the third barn was made because of its poor condition. The main requirements to the house design were maintaining barn features, extensive use of glass, which will allow daylight to penetrate deeply into the building’s interior, using simple local materials such as wood and brick. Simplicity is the heart of this house.

The defining feature of the project is that the front of the house can be perceived as a traditional local barn, while backyard is open to the natural landscape and looks like a luxury contemporary house.

Upper floor houses the master bedroom, which allows observing the whole living room with a fireplace therefrom. Also huge edge-to-edge windows provide a panoramic view on a green area of the farmlands.

The project is a combination of minimalism and constructivism bringing together images of chalets and traditional English mansions, what makes it unique and distinctive.

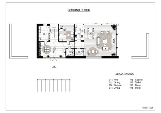
Ground floor: open space living room, family dining room with a kitchen, laundry room, cabinet, water closet, dressing room.

First floor: master bedroom, bathroom and dressing room; three guest bedrooms, two guest bathrooms, guest dressing room.

Upcoming Events

  • Slate Reimagined: The Surprising Advantages of Slate Rainscreen Cladding

    Webinar

    Register Now
  • The State of Residential Design Today: Innovations and Insights from RADA-Winning Architects

    Webinar

    Register for Free
  • Specifying Smarter with Copper-Clad Aluminum (CCA) Metal-Clad Cable

    Webinar

    Register for Free
All Events