Condor Street Housing

Project Details

Project Name
Condor Street Housing
Architect
Merge Architects
Project Types
Multifamily
Project Scope
New Construction
Project Status
Built
Year Completed
2023
Size
10,717 ft²

Project Description

This project was selected as a Merit winner in the 2023 Residential Architect Design Awards, Multifamily Housing category.

“It felt like [the building] gave itself some very clean rules … and was very smart about the detailing.” —Juror Maija Kreishman

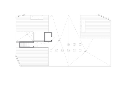
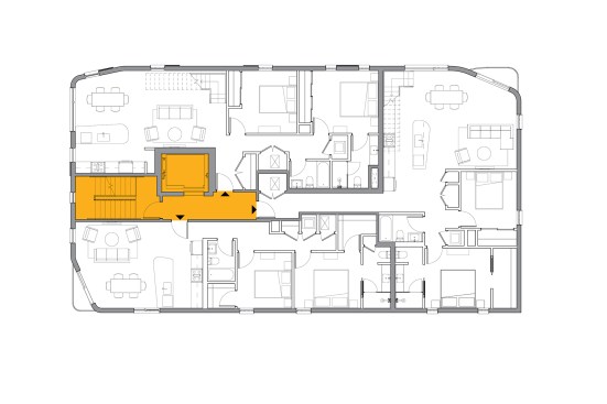
When Merge Architects took on this 10,717-square-foot housing project on a corner lot in Boston’s Eastie neighborhood, the locally based firm encountered three main challenges: navigating an inclined building site, showcasing nearby Chelsea Creek, and devising an exterior that would complement the neighborhood and nearby residences.

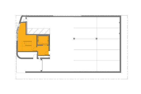
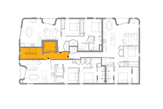
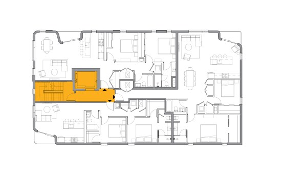
To begin, the team tucked enclosed parking spaces and a small lobby into the ground floor, strategically built into the slope of the street. Three floors, each hosting a trio of apartments, sit atop that first level. The housing block’s undulating façade mitigates its mass—helping it blend in with the smaller homes around it—while simultaneously affording the creation of small, covered balconies from which residents can admire water views. The team’s exterior material palette, meanwhile, is just as thoughtful: Anchored by corrugated metal and the occasional swath of wood siding, it references the industrial activities that have long driven this particular area of Boston.

PROJECT CREDITS
Project: Condor Street Housing, Boston.
Client/Owner: WonderGroup
Architect: Merge Architects, Boston. Principal-In-Charge: Elizabeth Whittaker; project team: Robin Bankert, Ivan O’Garro, Soo Jin Yoo, Elana Abraham, Liz Galvez, Nebia Zeroual
Mechanical Engineer: Zade Associates
Structural Engineer: TLH Structural Consulting
Electrical Engineer: Zade Associates
Civil Engineer: Greater Boston Surveying and Engineering
General Contractor: WonderGroup

MATERIALS AND SOURCES
Appliances: BEKO refrigerator, range, and dishwasher; Yale Stainless Steel Custom Hood series over range.
Metal: Atas Slate Gray Corrugated Siding
Paints and Finishes: Benjamin Moore
Structural System: Wood-framed over steel podium
Windows and Doors: Jeld-Wen

Upcoming Events

  • Design Smarter: Leveraging GIS, BIM, and Open Data for Better Site Selection & Collaboration

    Live Webinar

    Register for Free
  • Slate Reimagined: The Surprising Advantages of Slate Rainscreen Cladding

    Webinar

    Register Now
  • The State of Residential Design Today: Innovations and Insights from RADA-Winning Architects

    Webinar

    Register for Free
All Events