Community Foundation Santa Cruz County

Project Details

Project Name
Community Foundation Santa Cruz County
Location
7807 Soquel DriveAptosCAUnited States95003
Project Types
Shared By
Monica Fulvio
Project Status
Built
Size
10,000 ft²
Certifications & Designations
LEED Gold

Project Description

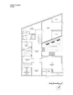
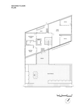
The Community Foundation Santa Cruz County in Aptos, Calif., has a new permanent home in a $9.3 million center designed by San Francisco–based Mark Cavagnero Associates.

http://architectmagazine.stg.zonda.onl/office-projects/community-foundation-santa-cruz-county.aspx

Upcoming Events

  • Design Smarter: Leveraging GIS, BIM, and Open Data for Better Site Selection & Collaboration

    Live Webinar

    Register for Free
  • Slate Reimagined: The Surprising Advantages of Slate Rainscreen Cladding

    Webinar

    Register Now
  • The State of Residential Design Today: Innovations and Insights from RADA-Winning Architects

    Webinar

    Register for Free
All Events