Colorado Outward Bound Year-Round Micro Cabins

Project Details

Project Name
Colorado Outward Bound Year-Round Micro Cabins
Project Types
Project Scope
New Construction
Shared By
Symone
Project Status
Built
Year Completed
2016
Style
Modern

Project Description

2016 Residential Architect Design Awards
Custom House Less Than 3,000 Square Feet: Citation

2017 AIA Small Project Award Program

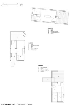
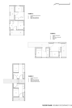
The Colorado Outward Bound School commissioned the Colorado Building Workshop at the University of Colorado-Denver to work with 28 students to design and build year-round micro-cabins in Leadville, Colo., that would serve as hospitable waypoints for weary hikers. The seven structures are wonderfully simple: just a porch, a mudroom, and a bedroom with custom-built plywood furnishings. These cube-shaped volumes sit 10,000 feet above sea level in a frigid pine forest. The designs were inspired by the quinzee, a shelter Native Americans make by hollowing out piles of compacted snow—though for the cabins, the students opted to use structurally insulated panels. Each is perched on pilots grounded in concrete piers or existing boulders. Hot-rolled steel cladding serves as a low-maintenance rainscreen and contrasts with the cedar-clad porches and birch plywood finishes that glow orange when the cabins light up at dusk. These warm beacons call to campers to drop their packs and settle in for the night.

Upcoming Events

  • Build-to-Rent Conference

    JW Marriott Phoenix Desert Ridge

    Register Now
  • Reimagining Sense of Place: Materiality, Spatial Form, and Connections to Nature

    Webinar

    Register for Free
  • Homes that Last: How Architects Are Designing a Resilient Future

    Webinar

    Register Now
All Events