Cold Springs Crossing

Project Details

Project Name
Cold Springs Crossing
Project Types
Single Family
Project Scope
New Construction
Shared By
Chelsea Blahut
Project Status
Built
Year Completed
2014
Size
22,500 ft²

Project Description

PROVIDED BY AIA IDAHO:

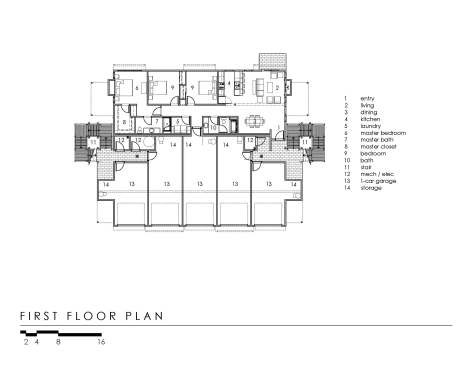
The project began with a developer utilizing a new community housing zoning overlay to build a 3-building, 15-unit rental project that would provide quality housing for working residents and also reinvigorate an underutilized location that is a gateway to the city of Ketchum. Goals to maximize development potential while respecting the project budget converged with the design team’s design directives that included extremely durable, sustainable, and livable buildings. The buildings were to provide a desirable living space for the long term, and to accomplish this feature spacious floor plans that utilize quality materials and detailing in addition to abundant daylight, decks and outdoor living spaces.

There are 1, 2 and 3 bedroom units range from 777 to 1,463 square feet on an approximately 1acre lot. Each building comprises 7,500 SF for a total of 22,500 SF for the project, with 42% of the lot as open space. The project is in Ketchum’s area of impact, having connectivity to the Wood River Trail system, mountain bike paths, and adjacency to the Big Wood River and St. Luke’s Hospital. Unit rental rates are priced competitively, with three designated as income restricted.

The units also accommodate the play-hard attitude of valley residents, incorporating extra deep garages for recreational equipment storage. The three buildings are sited to maximize views of the ski area and surrounding mountain ranges and allow for a tenant friendly interior motor court, with exterior open spaces and natural landscaping.

The structural system is wood frame construction, with steel post and wood glulam beams for the second floor and roof framing, and tube steel post and c-channel structural elements for the stairs and decks. Stairway treads are constructed of steel bar grate and handrails of metal mesh. Durable interior and exterior finishes were selected in anticipation of a high level of usage by rental occupants. The exterior materials include fiber cement siding panels, 18 gage hot-rolled sheet metal, and corrugated metal panels in several complimentary finishes installed in a rain screen application. The thermal envelope includes 1-1/2” of rigid foam insulation with radiant foil on the exterior, and spray foam inside the stud cavity. Each unit also includes a gas fireplace, radiant heat in the concrete floor slabs, and a washer/dryer. Maple cabinetry and doors and vaulted ceilings with birch veneer plywood that extend outside to also become the soffit material bring warmth to the interiors. The landscaping consists of drought-tolerant grasses and plantings to promote water conservation and blend harmoniously with the high desert surroundings.

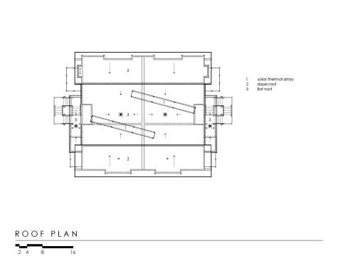
A solar thermal system connects eight evacuated tube panels on the roof of each building to a 400 gallon thermal storage tank, which is then connected to a Versa-Hydro combination boiler with an 80 gallon hot water tank in each unit. Data monitoring verifies the system supplies 46% of the yearly domestic hot water and radiant floor heat.

Upcoming Events

  • Design Smarter: Leveraging GIS, BIM, and Open Data for Better Site Selection & Collaboration

    Live Webinar

    Register for Free
  • Slate Reimagined: The Surprising Advantages of Slate Rainscreen Cladding

    Webinar

    Register Now
  • The State of Residential Design Today: Innovations and Insights from RADA-Winning Architects

    Webinar

    Register for Free
All Events