Coffou Cottage

Project Details

Project Name
Coffou Cottage
Project Types
Custom
Project Scope
New Construction
Shared By
mohan reddy
Project Status
Built
Size
2,800 ft²
Room or Space
Other

Project Description

2010 RADA
Custom / 3,000 Square Feet Or Less / Merit

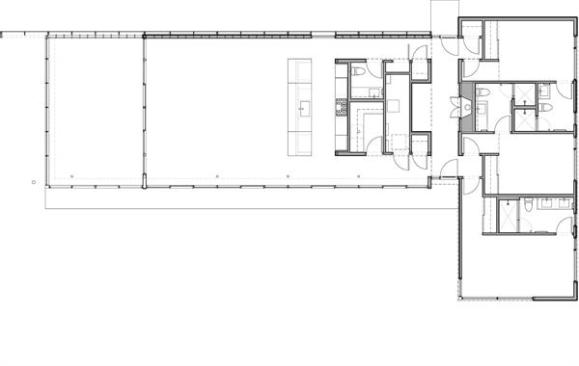
Privacy was the primary objective for this weekend retreat. A quarter-mile from Lake Michigan’s bustling southern shore—and only an hour from Chicago—it occupies a blissfully quiet meadow surrounded by woodland. Architect Brad Lynch heightened the sense of remove with a building that hides its lamp under—or perhaps behind—a bushel.

As one approaches, Lynch notes, “It seems almost like a hidden agricultural building.” A red cedar screen shelters the entry elevation, yielding only at the front door. Inside, a linear entry hall joins two barlike forms, one containing bedrooms and the other a kitchen/dining/living space that extends into a large screen porch.

By locating the fireplace in the entry hall, Lynch freed sight lines in the living space. Upon entering the latter, he reports, “Bang! All you see is the forest and greenery and nature.”

Our judges summed up their view in a single word: “Sweet.”

Upcoming Events

  • Slate Reimagined: The Surprising Advantages of Slate Rainscreen Cladding

    Webinar

    Register Now
  • The State of Residential Design Today: Innovations and Insights from RADA-Winning Architects

    Webinar

    Register for Free
  • Specifying Smarter with Copper-Clad Aluminum (CCA) Metal-Clad Cable

    Webinar

    Register for Free
All Events