Coffee Plaza

Project Details

Project Name
Coffee Plaza
Location
HamburgGermany
Project Types
Office
Shared By
Xululabs
Project Status
Built
Size
291,702 ft²

Project Description

Category: Work
Citation

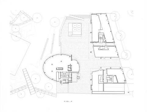
Hamburg’s Coffee Plaza is a 291,500-square-foot center for international coffee trade that includes the ovoid headquarters for Neumann Kaffee Gruppe, along with two additional office buildings and a large public plaza. The site is key to ambitious redevelopment efforts seeking to reinvent Hamburg’s once-industrial port as a business and cultural center.

Raised on a podium overlooking nearby Sandtorpark, the oval-shaped tower mediates the separation between the park and plaza. Inside, behind a ventilated façade, the oval configuration improves visual and physical connections between the office workers, resulting in greater collaboration. “This project is potentially a new take on a minimal floor plate with an emphasis on minimizing circulation,” juror Hilary Sample said, noting that the project speaks “to a new idea about scale in the workplace. It’s more intimate.”

Some jurors questioned the efficiency of building three buildings, with three costly elevator cores, instead of one. But overall, the jury lauded the project’s accomplishment as an urban design gesture, creating relationships between three discrete elements—and the surrounding neighborhood—rather than introducing one massive tower to the area. “The oval building … is scaled to fit very nicely in that part of Hamburg,” juror Raymund Ryan said. “It makes for a civilized city.”

Upcoming Events

  • Design Smarter: Leveraging GIS, BIM, and Open Data for Better Site Selection & Collaboration

    Live Webinar

    Register for Free
  • Slate Reimagined: The Surprising Advantages of Slate Rainscreen Cladding

    Webinar

    Register Now
  • The State of Residential Design Today: Innovations and Insights from RADA-Winning Architects

    Webinar

    Register for Free
All Events