Claremont House

Project Details

Project Name
Claremont House
Architect
Benjamin Moore
Project Types
Custom
Project Scope
New Construction
Shared By
Chinnu
Project Status
Concept Proposal
Size
4,250 ft²

Project Description

2010 RADA
Custom / More Than 3,000 Square Feet / Merit

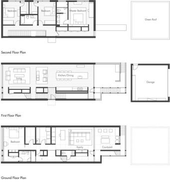
The elegance of schematic plans typically frays a bit on the way from trace paper to bricks-and-mortar reality, but architect Brad Lynch’s house in Chicago’s North Side seems to have made the trip unscathed. The big ideas here include a kitchen/dining/living space that spans the depth of the building between end walls of floor-to-ceiling glass. “My homage to the front porch,” explains Lynch, who also included retractable shades.

Second-floor bedrooms are as private as the main level is public, while a lower-level family room opens toward the rear, onto a subgrade courtyard. A monolithic millwork volume rises through all three floors, containing storage, kitchen, and service functions and separating living spaces from the linear stair that acts as the house’s primary circulation spine.

The clarity of Lynch’s scheme and the fidelity of its execution struck a chord with our panel of judges, who called the outcome “incredibly disciplined.”

(See more on this project. which also won a Merit award in the Architectural Design Detail category.)

Upcoming Events

  • Design Smarter: Leveraging GIS, BIM, and Open Data for Better Site Selection & Collaboration

    Live Webinar

    Register for Free
  • Slate Reimagined: The Surprising Advantages of Slate Rainscreen Cladding

    Webinar

    Register Now
  • The State of Residential Design Today: Innovations and Insights from RADA-Winning Architects

    Webinar

    Register for Free
All Events