City Leadership

Project Details

Project Name
City Leadership
Location
MemphisTN38104
Architect
Archimania
Project Types
Office
Project Scope
Interiors
Shared By
archimania
Project Status
Built
Year Completed
2017
Size
3,060 ft²

Project Description

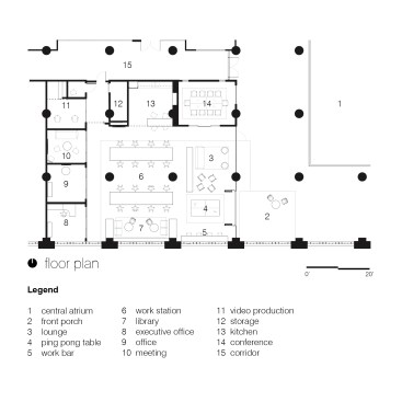
City Leadership, a non-profit whose mission is to attract and catalyze a diverse workforce for Memphis, a city on the rise, moved its offices into a newly rejuvenated Sears warehouse occupied by many other community-centered organizations. The organization’s brand requires they balance the need to recruit visionary young leaders with an image worthy of community investment. They wanted to offer a spectrum of types of workspaces to accentuate the importance of cultivating relationships in a diverse community. The office space is bounded to the south by the warehouse’s windows and to the east by a large public atrium. The project’s design strategy directly connects an open office area with the public atrium, then furnishes the open office with a field of workspace choices. A series of spliced, woven carpets, are used to define the collaboration zones within the open workspace. The flexible zones are positioned to take advantage of the natural daylight and views of the city. The carpet and furniture spill out into the public atrium beneath a frameless glazed storefront with a large glass garage door, creating a ‘front porch’ and opening the interior of the organization up to the community. Offices and multi-use meeting spaces form an “L” around the open workspace, framing connections between collaborators and the public. The neutral material palette of white work surfaces, walnut millwork, and grey upholstery, along with the raw finishes of the concrete warehouse, frame the organization’s colorful campaign graphics on items such as glasses, mugs, and t-shirts. The design reflects the image of an organization committed to the community while providing diverse workspaces for an agile staff.

Upcoming Events

  • Design Smarter: Leveraging GIS, BIM, and Open Data for Better Site Selection & Collaboration

    Live Webinar

    Register for Free
  • Slate Reimagined: The Surprising Advantages of Slate Rainscreen Cladding

    Webinar

    Register Now
  • The State of Residential Design Today: Innovations and Insights from RADA-Winning Architects

    Webinar

    Register for Free
All Events