City Centre Glassworks: An Adaptive Reuse Workshop and Experimentation Facility

Project Details

Project Name
City Centre Glassworks: An Adaptive Reuse Workshop and Experimentation Facility
Architect
Justin Yan
Project Types
Industrial
Project Scope
Adaptive Reuse
Shared By
katie_gerfen
Project Status
Student Work

Project Description

This project is a winner in the 2018 COTE Top Ten for Students awards program, sponsored by the AIA and ACSA.

Student: Justin Yan
School: Carleton University
Faculty Sponsor: Sheryl Boyle

From the Submission:

PROGRAM BRIEF
The City of Ottawa’s Community Design Plan for Bayview Station District allows for considerable up-zoning to transform a community scale neighbourhood into an area of many 12- to 30-storey condominium towers by the year 2030. This new influx of high residential density will sit at the intersection of Ottawa’s past industrial district and several residential neighbourhoods. Located between Hintonburg and Centretown West near Bayview transit station, the 1908 Ottawa Stairworks factory building sits beside a modernist warehouse complex with a rich history of design, fabrication, and material innovation. The Stairworks building serves as the site for this adaptive reuse project to house City Centre Glassworks, an experimental fabrication facility promoting recycling, up-cycling, and transformation of everyday glass items into new building materials and handcrafted pieces of art. The project provides new workshop and testing facilities for new types of glass block masonry and structural glass products, while simultaneously providing demonstration and craft studios for local glassblowing artists.

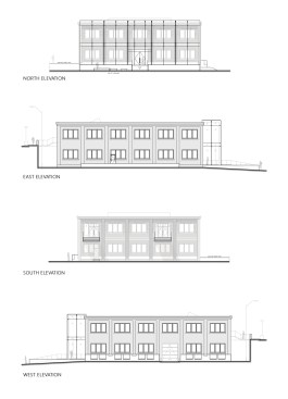
The entirety of both the north- and south-facing walls of the existing building have been reconstructed with new, UV bonded glass masonry technology, while maintaining the rhythm and character of the existing building facade. The existing parking lot has been redesigned as a public plaza with reflecting pools, a fire pit, and a seating area to invite public gathering and a curiosity-driven sense of community. The new semi-permeable landscaping pavers and green roofs reintroduce a variety of grasses and other vegetation to a site which has sat under asphalt for over a century.

The concept of the window has been expanded to include new horizontal apertures that reveal and celebrate the history of the existing building. The new glazed atrium attaches itself to the north facade of the building and "hinges" an imprinted memory of the original factory’s facade into the ground. The two reflective pools tiled with glass blocks and glass aggregate concrete panels recall the location of the old windows & doors. The residual heat from the building will cause the water in the pools to condense into a cloud of mist, enveloping the building and rising up as a beacon above the Somerset Street bridge. This visual, vertical extension of the building will help temper the contrast between the existing low density housing and the new condo towers, while creating social gathering spaces to engage the community in the activities of ‘making’ inside the workshops.

In the winter months, the exhausted heat from the three glass-melting furnaces in the basement will be recirculated into radiant floor heating coils and piped out as hot water for reuse by the surrounding buildings. Storm water is collected on-site, drained from the plaza and stored in an underground cistern directly below the fire pit. When needed, some of this water is chilled and piped through radiant cooling panels suspended from the ceilings.
City Centre Glassworks echoes the alchemic states of glass as ‘fire’ and ‘water’ throughout its creation, and organizes itself to maximize the community’s engagement with this beautiful craft of transformation.

DESIGN FOR INTEGRATION
In response to the foreseen densification and construction of condo towers, City Centre Glassworks attempts to counter the increased levels of resource consumption by the surrounding buildings. As an adaptive reuse project retaining over 90% of its existing structure and materials, its initial environmental impact is greatly minimized in the design and construction phases. Through extensive storm water collection and heat redistribution efforts, this project takes full advantage of passive strategies for its interior environmental control. It will be able to share excess heat and water to provide ‘free’ resources to its neighbours. The added incorporation of green roof vegetation will also help regulate ambient CO2 levels and provide precious greenspace to the new, built, residential complex.
Metric: 90% annual comfort using passive systems

DESIGN FOR COMMUNITY
The project’s close proximity to a large transit hub and integration within a residential complex guarantees a strong and steady flow of foot and bicycle traffic. The act of "opening" two of the old concrete walls aims to create more inviting and permeable social spaces, such as a cafe and galleries. The existing parking lot has been redesigned as a public plaza with reflecting pools, a fire pit, and a seating area to invite public gathering and a curiosity-driven sense of community. When the community gathers in and around this social hub of activity and innovation, they will be fully immersed in the creative spirit of making, discovery, and learning.
Metric: Walk Score 74, Transit Score 90, Bicycle Score 99

DESIGN FOR ECOLOGY
The project site currently sits in an industrial node adjacent to a major arterial street and several large warehouses. The new semi-permeable landscaping pavers and green roofs will reintroduce a variety of grasses and other vegetation to a plot of land which has sat under an asphalt parking lot for over a century. In addition to providing a green roof terrace open to the public, the overall ‘green cap’ on all of the building’s horizontal surfaces will bring a refreshing view of nature, growth, and regeneration to the condo residents looking down at the building from their units in the sky.

Metric: 72% site area designed to support vegetation

DESIGN FOR WATER
Storm water is drained into a large underground cistern from the sloped plaza under the fire pit and a trough of glass aggregate gravel along the western wall’s exterior benches. All of this collected water is filtered and used within the building, ranging from fire suppression (9%) to radiant cooling and workshop supply (73%) to greywater (18%). In the event that local rain and snow levels surpass the storage capacity of the cistern and the building’s water usage, any excess storm water can be supplied for use by the neighbouring buildings. Subsequently, water is used as a design feature in the reflecting pools. The residual heat from the building’s workshops will cause the water in the pools to condense into a cloud of mist, enveloping the building and rising up as a beacon above the Somerset Street bridge.

Metric: 94% On-Site Storm Water Management

DESIGN FOR ECONOMY
Significant cost reduction is achieved in both the construction and material sourcing phases of this project due to its extensive adaptive reuse of the existing timber-structured and concrete shell building. Over 90% of the existing building has been repurposed or remained intact throughout the design process, and any new glass elements have been fabricated in the workshops within. Additionally, operating costs will be brought down by the abundance of passive environmental control systems, and there is a potential for revenue through the trade of excess services (heat/water) to adjacent buildings.

DESIGN FOR ENERGY
Through its introduction of glazed masonry, skylights and ample amount of existing windows, City Centre Glassworks optimizes its use of natural daylighting to reduce energy loads for artificial lighting. Most of the electricity costs consumed by the workshops and furnaces are offset by the free environmental control strategies embodied in the radiant heating recovered and recirculated from the furnace output.

DESIGN FOR WELLNESS
Main social spaces (café, store, and galleries) in the building have been positioned to receive the highest levels of natural daylight through both the north-facing glass walls and large east- and west-façade windows. Noisy HVAC equipment is kept to a minimum, instead relying more on the passive heating and cooling technologies integrated into the building. All of these public gathering spaces have direct lateral and overhead views of the two glass workshops to encourage and inspire the observers’ creativity and educate the public about both glass art and new innovations in building technology.

Metric: 83% Day-lit spaces, 86% Views to Outdoors, 64% within 15’ of Operable Windows

DESIGN FOR RESOURCES
In addition to retaining all of the original wooden columns and beams, all demolished concrete walls and wood floorboards have been repurposed into new structural elements, cladding, and millwork finish materials. The existing building’s slip-form concrete walls have been retrofitted with an interior layer of mineral fibre insulation and all necessary environmental barriers to bring the wall assembly up to code and ensure adequate moisture and vapour protection. In an effort to further reduce operation costs, LED light fixtures have been used throughout for task lighting, and high efficiency appliances have been installed in the café. These methods and materials, combined with the passive environmental control strategies, help to dramatically reduce the building’s material consumption and carbon footprint.

Metric: [21 lbs CO2 / sqft] from construction

DESIGN FOR CHANGE
The glass workshops, gallery, and glassworks store have all been flexibly designed as large open spaces with a freeform potential for rearrangement. If the building needs to adapt to any new programming in the future, this also facilitates more streamlined and less destructive renovations. Because the architectural glass workshop functions primarily as an experimental laboratory, it is intended that the two glass facades and the atrium be constantly dismantled and rebuilt with the newest and most advanced form of glass masonry technology. The existing building’s heavy timber structure and concrete shell is very strong, stable, and resilient – having been built in the early 1900s. With proper surface treatments and any structural bracing added to the structural elements when necessary, the new building has the potential to double its existing lifespan.

DESIGN FOR DISCOVERY
As more sustainable design practices and techniques are developed through research and testing, the HVAC and fabrication equipment can adapt accordingly. Ideally, by 2030 and beyond, a better heat recovery and air filtration system will be added to the large industrial furnaces to recycle even cleaner indoor air throughout the building. Hopefully, the sustainable practices implemented throughout this project – combined with new material knowledge and applications developed within the workshop facilities – will lead to even more advances in sustainable and environmentally beneficial design. Through this design process, I have discovered the power of design subtlety. The broad topics of design, energy, and environmental sensibility can truly be addressed by creative and subtle interventions to existing architectural fabric. Not only is subtlety a design practice, it is also a philosophy of the environment.

Upcoming Events

  • Build-to-Rent Conference

    JW Marriott Phoenix Desert Ridge

    Register Now
  • Reimagining Sense of Place: Materiality, Spatial Form, and Connections to Nature

    Webinar

    Register for Free
  • Homes that Last: How Architects Are Designing a Resilient Future

    Webinar

    Register Now
All Events