CITTA 50

Project Details

Project Name
CITTA 50
Location
Washington, DCDC
Project Types
Multifamily
Shared By
dmadsen
Project Status
Built
Size
34,680 ft²

Project Description

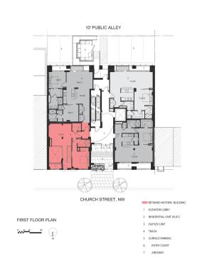
Located within Washington DC’s Greater 14th Street Historic District, this unique adaptive reuse project incorporates a historic coal distribution facility designed by John Lankford, Washington’s first registered African-American architect.

Abandoned for 40 years since the 1968 Martin Luther King riots devastated this area of the city, this $9M, 27-unit project includes the complete restoration of one of the two remaining Lankford buildings and the construction of a new 7-story residential addition beside and behind the restored building.

The historic Lankford building was retained in its entirety, held up with steel support framing while a basement floor level was inserted and crumbling foundations replaced. Its original brick façade was restored while windows and doors were replicated. The coal drive-through opening was restored and the area occupied by the original truck scale was memorialized through the creation of a double height living area.

Articulated as a lively composition of multi-colored/textured brick planes, the new facades relate to its historic industrial context and likewise appear to be built over time. Respecting its varied streetscape, the building allows for maximum views and open spaces on 3 faces.

Entered into a courtyard at street level through a steel and wood gate, a masonry façade is continued inside, referentially reappearing at each floor level. A blue oval penthouse completes the composition in a reinterpreted version of the ubiquitous water tower. Inside, efficient interlocking fire stairs and elevator serve 4 units per level, along with 4 duplex units at the top 2 floors, eliminating an elevator penthouse.

Upcoming Events

  • Design Smarter: Leveraging GIS, BIM, and Open Data for Better Site Selection & Collaboration

    Live Webinar

    Register for Free
  • Slate Reimagined: The Surprising Advantages of Slate Rainscreen Cladding

    Webinar

    Register Now
  • The State of Residential Design Today: Innovations and Insights from RADA-Winning Architects

    Webinar

    Register for Free
All Events