Chile House

Project Details

Project Name
Chile House
Location
PencoChile
Architect
Johnston Marklee
Project Types
Shared By
Xululabs
Project Status
Built
Size
4,465 ft²

Project Description

Site The edge of a forested hill overlooking the Pacific Ocean in Penco, a Chilean city devastated by the February 2010 earthquake.

Program A 4,465-square-foot pavilion with an enclosed gallery, one of 10 projects by different firms intended to help the region rebuild its cultural infrastructure.

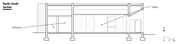
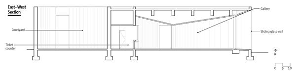
Solution The poured-concrete, flat-roofed pavilion contains two semielliptical volumes: an open-air courtyard with two entry points at the corners, and an enclosed gallery with a sliding-glass end wall overlooking the ocean. The entrance to the gallery from the courtyard occurs at the point where the two semiellipses touch. Offices, washrooms, and storage occur in the interstitial spaces between the two volumes.

Though identical in plan, the two volumes have divergent characters. The courtyard has concrete walls cast in forms made from tree trunks to give the surface a rough, scalloped texture that recalls the trees and buildings that were destroyed in the 2010 earthquake. The gallery’s polished, curved wall recalls the ocean—seen beyond the glass end wall—from which a tsunami originated. Juror Joseph Rosa called the pavilion “a viewing device,” and it does carefully modulate the visitor experience: The courtyard focuses attention on the sky, while the gallery’s folded ceiling directs the eye toward the horizon.

It has “the simplicity of a shed, but … [with] more building there,” juror Mary-Ann Ray said. And juror Cathy Simon noted that “within this context of heavily built space, the idea of the sanctuary is a positive thing.”

Upcoming Events

  • Design Smarter: Leveraging GIS, BIM, and Open Data for Better Site Selection & Collaboration

    Live Webinar

    Register for Free
  • Slate Reimagined: The Surprising Advantages of Slate Rainscreen Cladding

    Webinar

    Register Now
  • The State of Residential Design Today: Innovations and Insights from RADA-Winning Architects

    Webinar

    Register for Free
All Events