Children’s Chapel and Education Center

Project Details

Project Name
Children’s Chapel and Education Center
Shared By
Xululabs
Project Status
Built
Size
10,474 ft²

Project Description

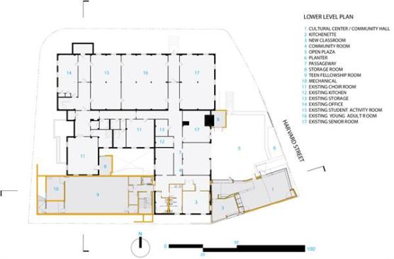
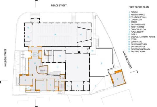
Brian Healy Architects • To celebrate its 50th anniversary jubilee in 2003, the Korean Church of Boston held a design competition. The brief: Design an infill structure on the church’s existing site for the congregation’s smallest members, children aged five through 12. Brian Healy Architects won the competition with a scheme for a two-story (plus basement) structure with a CMU-and-steel frame, clad in a wood-and-cement-panel rainscreen—a modern structure that is a far cry from its traditional New England surroundings. But instead of being an affront, the changes to the campus actually invite the neighborhood in, with a series of site and landscaping changes that excavated an existing plinth and retaining wall down to grade level, creating a public park for the community.

The 8,341 square feet of new construction and 2,133 square feet of renovated space include classrooms, a community hall, a fellowship hall, and a children’s chapel. The chapel—which juror Bill Valentine “liked spatially—features a faceted ceiling clad in acoustic panels. A CNC-fabricated bamboo screen allows people to enter the space without disrupting the proceedings and echoes the warmth of the wooden riser seating. The altar doubles as a stage area, so that the children can put on performances for their parents and the rest of the parishioners. Donna Robertson appreciated the woodwork, and although juror John Cary expressed some concern about the juxtaposition of the modern and traditional designs, he thought the project as a whole was “very, very nice.”

Upcoming Events

  • Future Place

    Irving, TX

    Register Now
  • Archtober Festival: Shared Spaces

    New York City, NY

    Register Now
  • Snag early-bird pricing to Multifamily Executive Conference

    Newport Beach, CA

    Register Now
All Events