Childen Village

Project Details

Project Name
Childen Village
Project Types
Education
Project Scope
New Construction
Shared By
greigobrien
Project Status
Built

Project Description

This project is one of the four finalists for the 2018 MCHAP.emerge awards. The winner will be announced at the Symposium, Award Ceremony, and Dinner on April 12 at S.R. Crown Hall.

FROM THE ARCHITECTS:

The immensity of Brazilian tropical savanna, the sky’s infinity and popular knowledge

It is the continuum, the vast and a thin imaginary line in the background that welcome the journey and the experience of Brazilians living in the central region of the country. The architecture proposed there could not be distinct from such conformation. It is the immeasurable and the beauty of its inhabitants that moves us.

However, how to deal with this site, where the current culture is blindly modernized in search of a mass-reproduced dream? How could architecture become relevant to this location marked by rural and indigenous memories, techniques, aesthetics and rhythms?

With these inquiries, the project to house 540 children who study at Canuanã boarding-school, aims towards transformation, cultural rescue, encouragement of local constructive techniques, native knowledge and beauty, together with the construction of a notion of self and of belonging, necessary for the children's development.

Process
To better understand the scale of this place inhabited by children whose point of view changes with every grown inch, and to propose a new understanding of the learning space also as a place of residence, the A Gente Transforma methodology was applied. It involved an open and intense collaboration with the local community, teachers, administration, and especially, the children. The process went through stages of research, immersion and collaboration with all those involved through workshops and dynamics in which a common understanding of the problem and its possible solutions, arising from the dialogue between the contemporary technique and the rich local vernacular knowledge, were sought. It became clear that there was a great potential and beauty in the local constructive techniques that used local soil in form of adobe brick walls, both as solid and perforated medium. Hence, this rough earth materiality, which performed extremely well climatically and represented the connection of people and place, was chosen as the proposal’s constructive and aesthetic north.

Residence
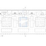
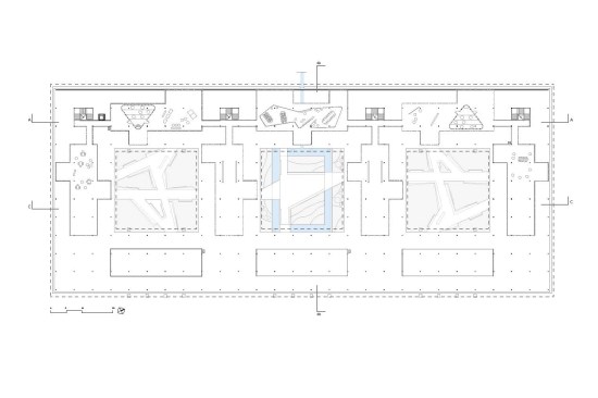
The process of continuous architectonic enhancement and interchange with teachers and students led to a solution imagined as a first step on the broader organization of the site. The new configuration foresees two larger (also in number of residents) and airier villages, one for male students and one for female students, following the required pre-existing genre divided setting. Each one is placed at a strategic point no longer set inside the central axis, which is to be filled solely with programs directly related to the act of learning, but rather closer to the edges to guide the growth of the farm complex organizing the territory and thus enabling for a better spatial and functional reading of the school as a whole.

In this new moment, the residences will no longer be conformed by large dormitory spaces, but rather by 45 units for six students each, comprised of bunk beds, more storage space and private washing areas. The units are then set together in groups of five, organized around three large patios filled with local savannah and tropical species. These courtyards serve as gathering spaces and also as means of reducing heat and controlling air humidity. A water mirror with small fish, located inside the central yard, collects the rain that spills from the roof and, in days with enough fall, returns the overflown water to the Javaés River.

Adjacent and on top of the sleeping blocks are different interacting areas such as TV rooms, reading spaces, balconies, resting hammock spaces, playing places, among others. These complementary programs were set and refined together with the students in order to improve their overall quality of life and increase their bond to the school, but also to serve as complementary learning spaces for the population outside of the school year.

Material
A thin, white metallic roof supported by a lightweight wood structure following a regular grid of 5,90m by 5,90m embraces the villages and common spaces. Beyond protection from sun and rain, the roof and grid set composes an intermediary space between the outside and inside, behaving as a great veranda that marks the vast horizon and frames views of the exterior and interior vegetation.

The choice for glued laminated eucalyptus wood in the structural elements came from its versatility, pre-fabrication and sustainable characteristics, in response to the necessity of accelerating construction speed and minimizing hassle to the school’s functioning. Likewise, stabilized earth blocks composed of local soil were chosen as the means of construction for its elimination of long distance transportation and optimal thermic properties. The material was used as enclosure in form of apparent brick walls as well as brick latticework to provide ventilation and protection to the washing areas. The brick performed technically but also aesthetically, much in the way the locals have been doing for a long time.

Ultimately, the design for the new villages aims to increase the children's self-esteem, individuality, sense of belonging, responsibility for the environment and overall academic performance, through the dialogue with local knowledge and constructive potential. Thus, a dialogue is created between vernacular techniques and a positive model for sustainable housing.

Location Formoso do Araguaia – Tocantins – Brasil
Area 23.344,17 m2
Project Year 2014-2016
Status Built
Client Bradesco Foundation / Canuanã School]
Architecture Rosenbaum + Aleph Zero
Wood Structure Design, Fabrication, and Construction Ita Construtora
Landscape Design Raul Pereira Arquitetos Associados
Lighting Design Lux Projetos Luminotécnicos
Structural Foundation Meirelles Carvalho
Acoustics and Thermal Insulation Consulting Ambiental Consultoria
Mechanical and Electrical Engineering Lutie
Concrete Slabs Trima
Construction Inova TS
Construction Management Metroll
Interiors and Furniture Design Rosenbaum and Fetiche Design

Upcoming Events

  • Design Smarter: Leveraging GIS, BIM, and Open Data for Better Site Selection & Collaboration

    Live Webinar

    Register for Free
  • Slate Reimagined: The Surprising Advantages of Slate Rainscreen Cladding

    Webinar

    Register Now
  • The State of Residential Design Today: Innovations and Insights from RADA-Winning Architects

    Webinar

    Register for Free
All Events