Chelsea Pied-à-Terre

Project Details

Project Name
Chelsea Pied-à-Terre
Location
New YorkNY
Architect
Stadt Architecture
Project Types
Single Family
Shared By
Miabelle Salzano
Project Status
Built
Size
580 ft²

Project Description

FROM THE ARCHITECTS:

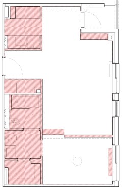
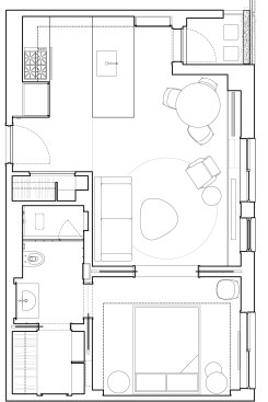
The Chelsea Pied-à-Terre Apartment is an East Coast home for a professional couple who permanently reside in Vancouver, British Columbia. Prior to the renovation, the post-war layout had a cramped enclosed kitchen isolated from the windowed living area. To address our client’s desire to have a robust working kitchen, we enlarged, opened, and reoriented the kitchen’s footprint to take advantage of the living room’s daylight. New pale oak herringbone and large marble chip terrazzo tile floors define the living and kitchen/bathroom areas respectively.

Our clients also challenged our team to incorporate a landscape feature to help mitigate their reaction to downtown Manhattan’s concrete environment. After much consideration, we found inspiration from Vancouver’s Stanley Park and reconsidered ‘landscape’ as a custom hand painted wall covering. Canopy beds like the Great Bed of Ware by Hans Vredeman de Vries traditionally used landscape references incorporated into their design. Our custom wall covering—in collaboration with Calico Wallpaper—is analogous to the canopy bed’s use of upholstery as a space defining ceiling canopy and headboard wall. When privacy is not a concern, this room-sized architectural canopy bed becomes a visual focal point from the open living room.

Project Credits
Project: Chelsea Pied-à-Terre, New York
Client: Kilowen Construction, Kieran Breen
Architect: Stadt Architecture, New York
General Contractor: Kilowen Construction, Kieran Breen
Code / Expediter: Clarke Construction Consultants
Wall Paper: Calico Wall Paper
Millwork: Omega Construction
Wood Flooring: LV Wood
Size: 580 square feet

Upcoming Events

  • Reimagining Sense of Place: Materiality, Spatial Form, and Connections to Nature

    Webinar

    Register for Free
  • Homes that Last: How Architects Are Designing a Resilient Future

    Webinar

    Register Now
All Events