Chelsea Court

Project Details

Project Name
Chelsea Court
Project Types
Affordable Housing
Project Scope
New Construction
Shared By
Louise Braverman
Project Status
Built
Room or Space
Architectural Detail

Project Description

2005 RADA
Affordable / Merit

With its bold colors, connection to the outdoors, and clever product specs, Chelsea Court is unlike most affordable housing projects. Indeed, said the judges, "it challenges the expectation of what that level of housing can be."

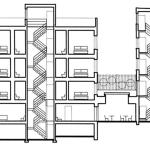
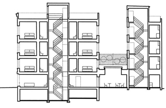
The existing building had several niches in its deep footprint and an unusual configuration of three parts: four floors in the front, one in the middle, and three in the rear. Architect Louise Braverman gutted the entire structure, upgrading the structural, mechanical, and electrical systems. Large storefront windows with etched colored glass bring in light and create a friendly connection to the street, while the idiosyncrasy of the layout allowed her to create inviting gathering spaces to support the small dwelling units.

Low-income individuals appreciate good design and architectural detail as much as everyone else, so Braverman looked for affordable objects that also provide architectural value. She used such items as colored ceramic-faced blocks, colored tiles, and durable designer furniture. The judges called the results "very sophisticated … an impressive use of space and color … a beautiful composition."

Upcoming Events

  • Design Smarter: Leveraging GIS, BIM, and Open Data for Better Site Selection & Collaboration

    Live Webinar

    Register for Free
  • Slate Reimagined: The Surprising Advantages of Slate Rainscreen Cladding

    Webinar

    Register Now
  • The State of Residential Design Today: Innovations and Insights from RADA-Winning Architects

    Webinar

    Register for Free
All Events