Charleston Branch of the New York Public Library

Project Details

Project Name
Charleston Branch of the New York Public Library
Location
225 Bricktown WayStaten IslandNY10309
Architect
ikon.5 architects
Project Types
Project Scope
New Construction
Shared By
mdeak
Project Status
Built
Year Completed
2022
Size
10,000 ft²
Certifications & Designations

Project Description

Inspired by the cultural connections to its site in Charleston Staten Island, a century old craftsmen community known for brick and terra cotta manufacturing, the 10,000 square foot library is conceived as a stylized brick vessel for information and community gathering. The exterior is clad in a textured roman brick whose non-standard composition highlights and pays homage to the former crafted manufacturing traditions of this community. Openings in the brick facades are created by removing the brick and trimming the openings with glass bead blasted stainless steel. A civic-scaled stainless steel portal announces the library entrance.

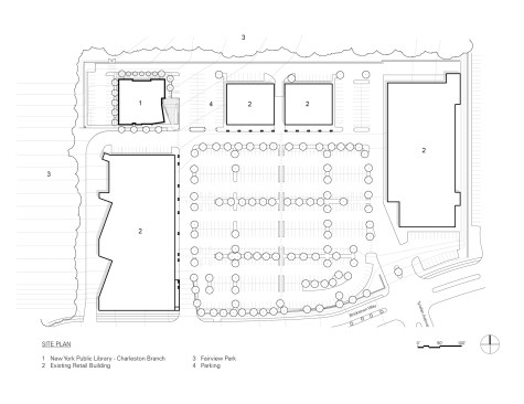
The library is unusually located in a familiar American suburban condition of a retail big box store shopping complex. It is bordered on two sides by asphalt parking lots and two sides by a New York City Park- Fairview Park. The Park is a recreational landscape that abuts the big box store complex, and the library is precariously located between these two site conditions. The library addresses these conditions by creating a community plaza and entry portal off the parking making an urban room as a threshold between the parking and library. Internally, the library program spaces are oriented toward the park and takes advantage of its views. One of those spaces, the main reading room and information commons is at the center of the spatial composition.

The Charleston Branch of the New York Public Library is a Net Zero high performance building designed to achieve a LEED Gold rating and is the first net zero library in New York City. The building’s high-performance characteristics are enabled by enhanced building envelope construction, an all-electric non-fossil fuel energy source and photovoltaic electric cells supplementing the energy source. This project meets the sustainable goals of the City of New York’s 80 x 50 program whereby the City intends to reduce 80 percent carbon emission by 2050.

Upcoming Events

  • Design Smarter: Leveraging GIS, BIM, and Open Data for Better Site Selection & Collaboration

    Live Webinar

    Register for Free
  • Slate Reimagined: The Surprising Advantages of Slate Rainscreen Cladding

    Webinar

    Register Now
  • The State of Residential Design Today: Innovations and Insights from RADA-Winning Architects

    Webinar

    Register for Free
All Events