Chadsworth Cottage

Project Details

Project Name
Chadsworth Cottage
Project Types
Shared By
Christine
Project Status
Built
Year Completed
2005
Size
4,800 ft²

Project Description

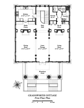
Chadsworth Cottage was designed for Clem Labine’s Period Homes Magazine to demonstrate that a new classical residence could be built correctly and at a reasonable cost by relying on stock items as much as possible. Its design blends the Palladian villa tradition and the local architectural traditions of eastern North Carolina and the Southeastern United States. The client wanted the cottage to be formal in its language, yet comfortable enough to be lived in as a primary residence and a vacation place for guests. With spectacular views of the ocean and inlet on three sides, the house was designed to take advantage its site.

Chadsworth Cottage is a 4800 square foot residence located on Figure Eight Island in North Carolina. Figure Eight Island is a coastal barrier island subject to hurricanes and flooding, so strict Coastal Area Management Act and FEMA guidelines presented planning, elevational, structural, and material challenges. It is, in essence, a classical villa built on top of a complex grid of 10×10 wood pilings and concrete grade beams, as most cottages are. The design is canonically classical, but modified for cost and to meet the design intent of correct classicism on a moderate budget. In addition to the underlying canonic language, many details were drawn from places such as Wilmington, Bath, and New Bern, North Carolina to ground the house in local North Carolina traditions. The decoration of the house, drawing from the client’s existing collection and adding many new and antique pieces, was designed for comfort and ease of use and cleaning, so guests can always feel comfortable walking in from the beach with sand on their feet, and the client’s three dogs can sit on anything they want, which they do.

Upcoming Events

  • Design Smarter: Leveraging GIS, BIM, and Open Data for Better Site Selection & Collaboration

    Live Webinar

    Register for Free
  • Slate Reimagined: The Surprising Advantages of Slate Rainscreen Cladding

    Webinar

    Register Now
  • The State of Residential Design Today: Innovations and Insights from RADA-Winning Architects

    Webinar

    Register for Free
All Events