Chabad FREE Center

Project Details

Project Name
Chabad FREE Center
Project Types
Shared By
VRadutny
Project Status
Built
Year Completed
2013
Size
2,014 ft²

Project Description

The renovation and addition to the Chabad FREE of Niles was driven by the need to improve and update a religious facility which had been operating in this 1950’s single story house for over 25 years. Through various previous renovations the building preserved its residential character; however, with the new updates and enlarged footprint this former residence now meets all the necessary building codes for an institutional building.

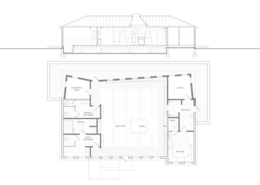
The purpose of our intervention was to provide a simple and efficient layout within while capitalizing on natural daylight for prayer and learning. The newly-renovated building is organized to provide two service zones which flank the sanctuary space on the east and west sides. This resulted in a square plan for the main space which provided greater flexibility for various functions and events. A new large skylight was inserted into the space to add much needed ceiling height for the ritual raising of the Torah (Hebrew Bible Scroll) during prayers. Floor to ceiling windows were placed along the north facade of the sanctuary space to let in even more light. Book shelves wrap the space and are arranged in a diagonal pattern, subtly echoing the lines in the Star of David. Their placement is meant to be a reminder to the occupants that this religious center is not only a place for prayer but a sanctuary for learning as well.

Because the rear of the building faces the neighborhood, we wanted to reduce the overall scale and appearance of the new structure. It therefore sits in subtle contrast to the existing building configuration in geometry and material. It is meant to read as an insertion rather than an addition. An elevated deck is anchored on all three sides with a large overhanging roof above, providing shelter from the elements and creating an exterior gathering space at the narrow rear yard. What appears as a kink in the façade is a response to strict buildable area requirements. This architectural gesture forms a new entry and re-appropriates square footage to the zones in the building which need it more.

Upcoming Events

  • Slate Reimagined: The Surprising Advantages of Slate Rainscreen Cladding

    Webinar

    Register Now
  • The State of Residential Design Today: Innovations and Insights from RADA-Winning Architects

    Webinar

    Register for Free
  • Specifying Smarter with Copper-Clad Aluminum (CCA) Metal-Clad Cable

    Webinar

    Register for Free
All Events