Central Park South Kitchen

Project Details

Project Name
Central Park South Kitchen
Location
New YorkNY
Project Types
Single Family
Project Status
Built
Year Completed
2015
Size
6,000 ft²

Project Description

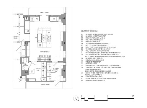
This 308 square foot state-of-the-art kitchen with an adjacent 65 square foot butler’s pantry is located in a David Easton decorated apartment. The 6,000 square foot apartment directly overlooks Central Park South and occupies the entire twenty-seventh floor of a premier pre-war building. The kitchen, which caters for over a thousand guests per year, was required to facilitate both intimate family gatherings as well as formal sit-down banquets for heads of state, dignitaries, and royalty, complete with silver service and tuxedoed waiters. Set within the same footprint, the gut renovation removed all unnecessary deeply profiled crown mouldings and impractical 6” square ceramic tiles with thick grout joints, which clad the entire kitchen. This customized kitchen is fitted with heavy-duty commercial grade kitchen equipment and carefully selected materials. New full height upper cabinets, floor-to-ceiling pantry closets, and the utilization of all under the counter island spaces, increased the storage capacity of this kitchen by 20%. The alteration is built on a clean formal language. The design incorporates the principles of ergonomics, functionality, and sustainability and the need to create a safe hygienic environment for food handling. All new finish materials including the predominate white solid surface material on all counters and wall paneling, cold-welded marmoleum flooring, striated bamboo doors, high pressure laminate cabinets and stainless steel are well suited for a food environment. The lighting uses a combination of dimmable energy-efficient, low voltage halogen and 2700K warm white LED sources to provide bright, warm lighting while using significantly less energy than traditional incandescent sources, and yet provide a well-lit kitchen space when required. This kitchen alteration creates a commercial caliber kitchen in a residential language—a space that it is visually powerful, intellectually elegant, and timeless.

Upcoming Events

  • Slate Reimagined: The Surprising Advantages of Slate Rainscreen Cladding

    Webinar

    Register Now
  • The State of Residential Design Today: Innovations and Insights from RADA-Winning Architects

    Webinar

    Register for Free
  • Specifying Smarter with Copper-Clad Aluminum (CCA) Metal-Clad Cable

    Webinar

    Register for Free
All Events