Center of Attention

Project Details

Project Name
Center of Attention
Location
PlymouthMN
Project Types
Light Commercial
Shared By
dmadsen
Project Status
Built
Size
513 ft²

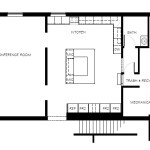
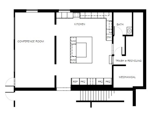
Project Description

This successful convenience foods company was ready to grow and expand. But the existing kitchen was no longer conducive to their business model. It was outdated and could no longer accommodate spacial needs, and did not convey the brand’s high quality standards. The facility’s kitchen is used for research/development, training, and is also a stage kitchen to which they bring clients.

We paid special attention to the direct preparation and delivery of food, by creating a massive center island that is divided into two zones: prep and service. It facilitates convenience in preparing food products with necessary microwave and convection cooking vital to the convenience foods business, it allows for ease in immediate discarding of trash with rollout garbage compartments, and it ultimately perpetuates a high quality presentation of end product, with an impressive counter and seating. To the vertical grain oak, we applied a silver metallic finish, creating it a reflective quality. Custom designed monochromatic modern surface materials highlight the food product, allowing it to remain the focus of the user experience.

Custom designed cooling, storage, and sinks reside nearby, around the room’s perimeter, for added convenience. An adjacent training room boasts new modern casual conference furniture, hi-end audio/video technology, and new windows to introduce natural light. This new kitchen facility is not current and will last the test of time. It conveys the relaxed and professional styling that the client requested, and it allows the kitchen to be industrial in function. With nontraditional fixtures and a clever arrangement of built-in functions, we created a central fixture that looks beautiful and maximizes efficiencies, but ultimately allows the client’s product to be the center of attention.

Upcoming Events

  • Design Smarter: Leveraging GIS, BIM, and Open Data for Better Site Selection & Collaboration

    Live Webinar

    Register for Free
  • Slate Reimagined: The Surprising Advantages of Slate Rainscreen Cladding

    Webinar

    Register Now
  • The State of Residential Design Today: Innovations and Insights from RADA-Winning Architects

    Webinar

    Register for Free
All Events