Center for Asian Art at the John and Mable Ringling Museum of Art

Project Details

Project Name
Center for Asian Art at the John and Mable Ringling Museum of Art
Architect
Machado Silvetti
Shared By
katie_gerfen
Project Status
Built
Size
25,500 ft²

Project Description

Interview by Nate Berg

What was your scope of work at the Ringling, and what is the site’s context?
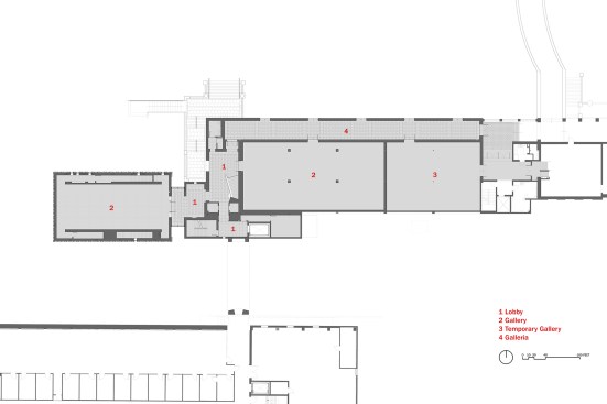
Rodolfo Machado, Intl. Assoc. AIA: The project is on a campus that was built in the 1930s, and has been added on to at various times. Our site is at the end of one of two pink stucco wings that expand the original 1931 museum building, and on the other side of our site is a 1970s gray stucco academic building that houses offices, a library, and meeting rooms. The showcase part of our project—the jewel in the ring—is an entry pavilion to the museum’s Asian art collection, and its design comes from a desire by the client to have something different, with its own identity, that is a representation of the lovely collection inside and the status of Asian art at the Ringling. And also from the desire for it to be an attractor, a piece with some sort of visual interest that people would like to go see. It houses three things: At the ground level, there is a covered loggia that is low and shaded. On the second floor, you have a new art gallery for contemporary exhibits. And on the third floor, there is a multipurpose room, which functions as an auditorium, as a dining hall, as many other things.

But our project is actually much larger than the green pavilion—the other part, which is rather traditional, is within the existing wing and is very respectful of the old museum conditions. There, we created a new red-painted entry hallway, and new galleries, laboratories, and classrooms.

In a very broad architectural sense, this complex has a lot going on. How does your addition fit into the site?
I think it brings it up to date. The campus is beautiful and the vegetation is incredible. The collection is fantastic, and so is the original building. You could call it Spanish Venetian Renaissance Revival—a typical Gilded Age folly in the park. It’s quite a beautiful thing. But what affected our building the most was the desire to be different. To use a 21st-century iconography to do something that belongs in Florida, that represents the collection, that is sensual and beautiful, and that uses today’s geometries.

How much did the notion of drawing people in with the pavilion affect the way that you approached the design?
It was a consideration but not an overriding one. We’re not doing Disney World, we’re doing architecture. So popularity has a place and is a good thing, but it’s not just about attracting people. It’s also about a good disciplinary kind of architecture.

What drove the design of the pavilion’s tiled façade?
Materially, we chose terra-cotta because the structure is a piece in a garden, and the garden pavilion has always been a light green terra-cotta with golden edges. But the material is also in the traditional buildings on the Ringling campus, like the John and Mable Ringling House—it is on the floors and inlaid in the walls.

For the tiles on our pavilion, we worked with an excellent factory, Boston Valley Terra Cotta outside of Buffalo, N.Y., and the size of the tiles was determined by the fabrication process. There are three sizes, small ones, little bit larger ones, and then the corners, which are different. The tiles’ geometry makes the building contemporary but also seductive and soft.

The color was chosen because of the green tile in Chinese architecture and gardens, and the green jade sculptures that are part of the collection. But it was also influenced by the vegetation—the exuberant big, thick leaves of Floridian gardens. Some may also see other things, like the leaves of an artichoke. That’s fine. Actually, I love that, because when a building is rich and original, people read it differently, which is good.

How did you determine the window arrangement?
First, I should tell you that the windows are the most expensive thing in the building. To make those perforations was very expensive, much higher than the cost of the solid pieces. Originally, we had more of them and we had to bring down the number because of a tight budget. But they are placed in such a way that when you are inside the room looking out through those frames, you will see little pieces of landscape. It’s like a collection of many small paintings on the wall of the room. Sometimes it’s the horizon, and sometimes only clouds or green grass. Sometimes, to see a beautiful view this way is more appealing than to see through a picture window. The eye becomes more selective when you see through small frames. They are mostly on the third floor where the lecture hall is, and are used very sporadically on the second floor so as not to impede the function of the gallery by bringing in natural light.

You note that the budget was limited. Did this change your approach to the design?
Maybe with some material choices: The floor in the entry lobby was supposed to be stone, but it became tile. But I don’t like to lament those things—it is the reality for any architect anywhere. The important thing is to know how to design with the money you have, not the money you wish to have. There’s a lot of pragmatism in this building. It’s a rectangular box with three floors of public places, one stuck on top of each other—that’s very practical thinking. But once you have that going according to budget and function, you make the most beautiful thing you can with that.

Project Credits
Project: The Center for Asian Art in the Dr. Helga Wall-Apelt Gallery of Asian Art at the John and Mable Ringling Museum of Art, Sarasota, Fla.
Client: Florida State University; the John and Mable Ringling Museum of Art
Design Architect: Machado Silvetti, Boston . Rodolfo Machado, Intl. Assoc. AIA (principal designer); Craig Mutter, AIA (project architect/project director); Jamie Setzler (project manager); Jeffry Burchard, AIA (senior designer); Keely McKown, Dany Gutierrez, Jayne Kang, Christian Lavista, Nicolas Viterbo (project team)
Local Consultant Architect: Sweet Sparkman Architects
Civil Engineers: AM Engineering
Geotechnical Engineers: Universal Engineering Sciences
Structural Engineers: Stirling and Wilbur Engineering Group
M/E/P/FP/AV/IT/SEC: TLC Engineering for Architecture
Landscape Architects: DWY Landscape Architects
Lighting Design: Lam Partners
Specifications: Kalin Associates
Code Consultants: Rolf Jensen and Associates
Exterior Envelope: Simpson Gumpertz & Heger
Size: 7,500 square feet (addition); 19,000 square feet (renovation)
Cost: $10 million

FROM THE ARCHITECTS:

The John and Mable Ringling Museum of Art is the legacy of circus entrepreneur and art collector John Ringling and his wife, Mable. The Museum—which features both a permanent collection and temporary exhibition galleries—sits on a historic sixty-six acre estate that also includes the Venetian-Gothic Cà d’Zan mansion, the winter-residence of John and Mable Ringling, the Tibbals Learning Center, the John M. McKay Visitors Pavilion (housing the Historic Asolo Theater), the Johnson/Blalock Education/Conservation Building and The Ulla R. and Arthur F. Searing Wing. Believed to be originally envisioned as one of the most comprehensive art museums in the world, the Museum was ahead of its time in assembling a significant collection of Asian Art. Now governed by Florida State University, the Museum establishes the Ringling Estate as one of the largest museum-university complexes in the United States.

The Asian Art Study Center is an addition and ‘gut renovation’ and to the West Wing galleries on the southwest corner of the Museum complex. The renovation converts approximately 18,000 square-feet of existing gallery space from temporary exhibition space to permanent galleries for the museum’s growing Asian collection. A 7,500 squarefoot addition houses new gallery space and a multi-purpose lecture hall. The Asian Art Study Center also includes innovative study/storage space and seminar rooms for scholars, researchers and students.

The addition’s façade is composed of deep-green, glazed terra cotta tiles that address the client’s requirement of a new monumental entrance. The façade relates to the natural environment of the Museum’s extensive landscape, and its color and chiseled profile are reminiscent of the Cà d’Zan mansion’s ceramic detailing. Machado Silvetti collaborated closely with Boston Valley Terra Cotta to develop the color, form and installation technique for the panels. The over 3,000 tiles provide a high performance, visually striking building envelope that redefines the functionality of the surrounding site by activating the existing courtyard and by addressing circulation and infrastructure needs of the site.

Upcoming Events

  • Design Smarter: Leveraging GIS, BIM, and Open Data for Better Site Selection & Collaboration

    Live Webinar

    Register for Free
  • Slate Reimagined: The Surprising Advantages of Slate Rainscreen Cladding

    Webinar

    Register Now
  • The State of Residential Design Today: Innovations and Insights from RADA-Winning Architects

    Webinar

    Register for Free
All Events