Caymus-Suisun Winery

Project Details

Project Name
Caymus-Suisun Winery
Project Types
Hospitality
Project Scope
New Construction
Project Status
Built
Year Completed
2022
Size
8,994 ft²

Project Description

This project was selected as a Honor winner in ARCHITECT’s 2024 Architecture & Interiors Awards, Architecture: Hospitality category.

“I appreciate the way in which the roof is the oculus and then other areas where the roof is kind of pulling away and allowing a sliver of skylight in the edges.” –Juror Brooke Horan

When the Wagners, a longtime farming and winemaking family well known for their Napa winery Caymus, embarked on expanding in neighboring Suisun Valley, they saw an opportunity to not only create new vineyards and orchards, but also add an onsite hospitality experience representative of their wines. They turned to Bohlin Cywinski Jackson to help them realize this component and make it reflective of the family’s forward-looking wine culture while celebrating the rich landscape of the Suisun Valley floor facing the Howell Mountains to the west.

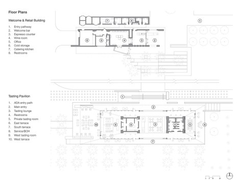
Designed to immerse guests in this landscape, Caymus-Suisun comprises a welcome and retail building featuring an open-air bar and the main wine-tasting pavilion building. The latter is low-slung, slightly raised above the valley floor on a plinth, and glazed on all sides to frame stunning views of the surrounding vineyards, orchards, palms, and mountain range — the other side of which lies Napa Valley. On the north and south sides of the building, 30-foot-wide floor-to-ceiling glass doors slide open to allow pleasant afternoon breezes to flow through, courtesy of the San Francisco Bay.

The pavilion was intentionally laid out as a flexible plan for varied gatherings around core volumes that house back-of-house facilities. Between these volumes, a pyramidal skylight soars above yet another tasting area, ensuring that visitors seated here have the constant access to views and light as the encircling guest zones do. Core walls and the floors may be constructed of humble concrete, but the material is elevated by the sophisticated, clean-lined design, which also features a dramatic wood clad ceiling that extends beyond the glass walls to form a cantilevered roof, the overhangs shielding the interior from harsh afternoon sun while also providing shaded cover for gathering outside the tasting pavilion.

PROJECT CREDITS:
Project: Caymus-Suisun Winery
Location: Fairfield, California
Client/Owner: Caymus / Wagner Family of Wines

Photography by Matthew Millman

Architect (include team member names, their titles, and any relevant AIA designations):
Bohlin Cywinski Jackson
Gregory Mottola, FAIA, Principal
Christopher Moore, AIA, Project Manager / Senior Associate
Toshiro Ihara, Project Architect / Associate
Kyle Anderson, Project team
Kay Bromley, Project team

Construction Start Date: September 2019
Construction End Date: June 2022
Interior Designer: The Bureau and Geldert Studios
Mechanical Engineer: Blue Forest Engineering
Structural Engineer: Eckersley O’Callaghan
Electrical Engineer: Atium Engineering
Civil Engineer: Foulk Civil Engineering
General Contractor: Cello & Maudru
Landscape Architect: Caymus (in collaboration with Berghoff Design Group)
Lighting Designer: EJA Lighting Design
Mass Timber Fabricator, Retail Building: Spearhead

Size in Square Feet: Tasting Pavilion: 5,500 square feet; Retail Building: 3,500 square feet

MATERIALS AND SOURCES (Please list, as accurately as possible, manufacturer name and website for all that apply):
Acoustical System:
Adhesives, Coatings and Sealants:
Appliances:
Bathroom Fixtures: Toto
Ceilings: Tasting Pavilion: Acoustic Microperf, Plain-Sawn White Oak; Retail Building: Microlam engineered lumber and Baltic Birch Plywood
Tasting Pavilion:

– Floors: polished concrete

– Core walls: GFR Concrete Wall Panels by Concreteworks

– Custom concrete tasting bar in main room by SC Fabrication

Retail building:

– GFR concrete in custom arrival bar by Concreteworks

Tasting Pavilion:

– Tasting counter materials: Travertine and reclaimed elm (sourced by Arborica)

Retail Building:

– Arrival bar: concrete and reclaimed elm (sourced by Arborica)

Exterior Wall Systems: Tasting Pavilion: Blomberg Windows

Flooring: Polished Concrete

Custom waxed canvas lounge chairs in central tasting room: Stephen Kenn
Custom set of six wine tables by fireplace in central tasting: Oja Design
Custom wood butcher block accessories at main tasting bar: Oja Design
Carved volcanic stone side tables: Lland Studio
Custom deck chairs around tasting room perimeter: Makr
Pebble tables in private tasting room: Chambers Art and Design
Outdoor lounge furniture suite at private tasting room patio: Jason Koharik
Hanging outdoor chairs: Makr Studio with Pohan’s Upholstery and Chambers Art and Design
Custom bar cart in private tasting room: Waka Waka
West tasting room & terrace furniture suite: Waka Waka
Various custom upholstery and cushions throughout: Pohan’s Upholstery

Tasting Pavilion:

 IGUs from Agnora, glass from Pilkington

 Skylight from Rollamatic, fritted Pilkington glass

Retail Building:

 IGUs from Agnora, glass from Pilkington

 Velux Skylights from Old Town Glass (installer), Vitro Solarban 70XL glass

HVAC: AAON, Daikin, Coolerado, Titus, Uponor
Insulation: Lapolla Foam-Lok, Knauf EcoBatt, CertainTeed Sustainable Insulation, Hilti Carck & Joint
Kitchen fixtures: Dornbracht, Kohler, Vigilant, Sub Zero, Hoshizaki, Perlick, Bosch, Crysalli
Lighting Control Systems: Lutron
Organic rope, wood, and glass wall-mounted light sculptures by Jerome Pereira
Hammered metal backlit discs by Chambers Art and Design
Element recessed downlights
Ketra G2 linear accent
EST linear strip lights
Sistemalux Ghost recessed wall lights
Lumenrail
Coronet
No.8
Masonry and Stone: Calstone ground face CMU
Caesarstone “Raw Concrete” countertops
Silver Travertine TR bar/sink
Metal: VMZinc Quart-zinc Anthra-zinc, Metal Sales corrugated, blackened stainless steel
Paints and Finishes: Benjamin Moore
Photovoltaics or other Renewables:
Plumbing and Water System:
Roofing: Sika Sarnafil

Structural System:

 Tasting Pavilion: Steel

 Retail Building: Wood

Wallcoverings:

Earthenware wall tile in all FOH restrooms by Cle Tile

Tasting Pavilion

– Core walls: GFR concrete wall panels, rift white oak plywood

– Slat walls/benches: solid rift white oak

Retail Building

– Ground face concrete block

– Coffee bar wall artwork: art plaster

Windows and Doors: Thermally broken powder-coated aluminum windows and doors from Blomberg Windows

Upcoming Events

  • Design Smarter: Leveraging GIS, BIM, and Open Data for Better Site Selection & Collaboration

    Live Webinar

    Register for Free
  • Slate Reimagined: The Surprising Advantages of Slate Rainscreen Cladding

    Webinar

    Register Now
  • The State of Residential Design Today: Innovations and Insights from RADA-Winning Architects

    Webinar

    Register for Free
All Events