CASA J at Chachalaka

Project Details

Project Name
CASA J at Chachalaka
Project Types
Single Family
Project Scope
New Construction
Shared By
John Van Dyke
Project Status
Built
Year Completed
2015
Size
3,000 ft²
Team
Designer/Architect: John Van Dyke

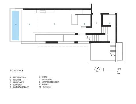
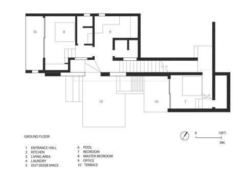
Project Description

A contemporary beach house, retreat, on the Pacific Coast of Mexico. John Van Dyke’s design of Casa J is for plein air living, taking in the extraordinary views of ocean and beach.

Upcoming Events

  • Slate Reimagined: The Surprising Advantages of Slate Rainscreen Cladding

    Webinar

    Register Now
  • The State of Residential Design Today: Innovations and Insights from RADA-Winning Architects

    Webinar

    Register for Free
  • Specifying Smarter with Copper-Clad Aluminum (CCA) Metal-Clad Cable

    Webinar

    Register for Free
All Events