casa de piedra

Project Details

Project Name
casa de piedra
Location
OjaiCA
Project Types
Single Family
Project Status
Built
Year Completed
2014
Size
1,470 ft²

Project Description

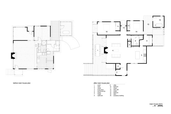
We extensively remodeled a 1916 uninsulated Southern California ranch foreman’s cabin into a new home and studio. We took a modern look at the local, rural vernacular, and reconnected the house to the local landscape, light, and air. A new front porch, entry, and master bedroom were ‘clipped’ on to the existing 1,350 sq. ft. structure, growing the house to 2,135 sq. ft. while maintaining the original footprint and the bulk of the stone foundation. Nestled within a grove of 200-year-old protected Valley Oaks, the additional elements were positioned to work with the trees and respect their root systems. Entering around a low stone wall through the landscaped garden, a path takes you past a potting shed, open air dining area with outdoor cooking fireplace. Above the raised front porch (elevated to address the flood plain) the roof reaches up welcoming visitors into an outdoor room, while allowing more sunlight into the house, and framing views of the citrus groves, palm trees, and distant mountains. The porch is outfitted with large canvas roll-down shades and nautical hardware to temper the afternoon sun and create an indoor/outdoor room in the evenings. Providing shelter from the wind and rain, the shades allow year round use of the room. French doors opening onto the porch from the living room and kitchen join the indoor and outdoor rooms into one large space for entertaining. The porch also serves as a stage for occasional musical events. Inside, the 8’ high dropped ceilings and interior partitions were removed, the roof was reframed, and the exterior walls reinsulated. The new high-ceilinged living room is anchored by the original stone fireplace and provides a generous space for friends and family to gather. Abutting the living room, the bathroom volume is ‘roofed’ with open framing and acrylic panels. A combination of a large skylight and LED lighting, the structure glows like a paper lantern. A semi-detached bath house sheathed in Sho-Sugi-Ban burned cedar siding creates a private patio with outdoor shower to the rear of the house. To the south, a converted garage houses a 650 sq. ft. guest house studio with new polished concrete floors and whitewashed random-width wood ceiling boards. A small Rais wood-burning stove heats the studio when necessary. Working together, the re-envisioned main house, outbuildings, and landscape elements (both planted and indigenous) activate and extend the living spaces to form a greater whole. With its rediscovered connection to the landscape, this is a small house that thinks of itself as a much larger one.

Upcoming Events

  • Design Smarter: Leveraging GIS, BIM, and Open Data for Better Site Selection & Collaboration

    Live Webinar

    Register for Free
  • Slate Reimagined: The Surprising Advantages of Slate Rainscreen Cladding

    Webinar

    Register Now
  • The State of Residential Design Today: Innovations and Insights from RADA-Winning Architects

    Webinar

    Register for Free
All Events