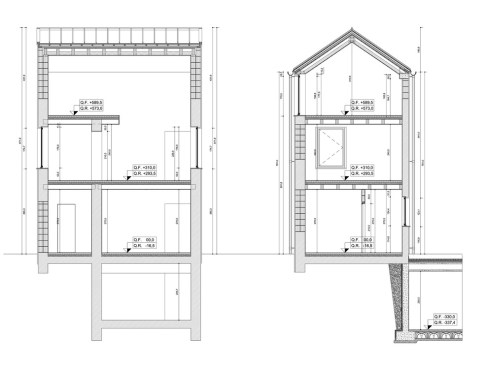
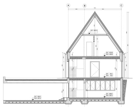
Projects Casa Carlotta Share Email Article Share on LinkedIn Share on X Share on Facebook Casa Carlotta Carlo Rivi Architecture Casa Carlotta Project Images 1 of 14 carlo carlo carlo carlo carlo February 15, 2015 Project Details Project Name Casa Carlotta Location InverigoItaly Architect Carlo Rivi Architecture Project Types Single Family Project Scope New Construction Shared By CRA Project Status Built Year Completed 2015 Project Description Single family house in Inverigo – CO