Carus Residence

Project Details

Project Name
Carus Residence
Project Types
Single Family
Project Scope
New Construction
Shared By
dmadsen
Project Status
Built
Year Completed
2003
Size
6,900 ft²

Project Description

FROM THE ARCHITECTS:

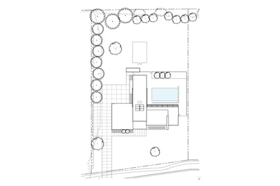
Positioned on a large, flat site in north central Illinois, this house evokes the horizontal influence of agricultural buildings historically built in the Midwest. The house incorporates a characteristic program for a family of five. However, visual and tactile elements interconnect and resolve each room’s function in a way that gives the project an uncommon sensibility. Cement board panels and varied sizes and applications of redwood siding are wrapped over a steel frame to create the exterior skin.
To maximize privacy, the house is L-shaped and oriented towards the perimeter of the lot. Facing the street to the north, the house acts as a privacy screen by protecting views into the pool area and yard. To create additional private outdoor space, a screened porch uses only the batten of a board and batten pattern of siding found on adjacent exterior walls.
The living and dining area, with floor to ceiling glazing, faces south to benefit from passive solar energy. Its windows, as well as those in the two story wing, all offer articulated views across the landscaped yard to open vistas.

Upcoming Events

  • Design Smarter: Leveraging GIS, BIM, and Open Data for Better Site Selection & Collaboration

    Live Webinar

    Register for Free
  • Slate Reimagined: The Surprising Advantages of Slate Rainscreen Cladding

    Webinar

    Register Now
  • The State of Residential Design Today: Innovations and Insights from RADA-Winning Architects

    Webinar

    Register for Free
All Events