Carnaun Primary School, Ireland

Project Details

Project Name
Carnaun Primary School, Ireland
Location
CarnaunGalwayIRELAND
Project Types
Education
Shared By
Paul Dillon Architects
Project Status
Built
Year Completed
2012
Team
Architect: Paul Dillon

Project Description

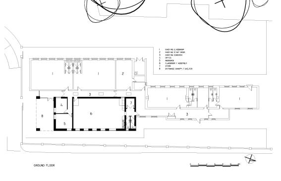
The project was for the upgrade of an existing four classroom national school and the construction of a new classroom, resource room and general office. The new classroom is larger than standard and is designed so that it can double as an assembly room when required.

The design placed the new extension to front of the school, creating a formal main entrance, which previously the school had lacked. The scale and design of the new entrance portal announces the building as an important community building. Furthermore it also acts a practical shelter for children arriving early, waiting to be picked up, or just togging out for games of hurling in the adjoining fields. The new design respects the form, materials and conventional construction of the existing school. It is a robust architecture set in an agricultural landscape.

Upcoming Events

  • Design Smarter: Leveraging GIS, BIM, and Open Data for Better Site Selection & Collaboration

    Live Webinar

    Register for Free
  • Slate Reimagined: The Surprising Advantages of Slate Rainscreen Cladding

    Webinar

    Register Now
  • The State of Residential Design Today: Innovations and Insights from RADA-Winning Architects

    Webinar

    Register for Free
All Events