Carlsbad Safety Training Center

Project Details

Project Name
Carlsbad Safety Training Center
Location
5750 Orion WayCarlsbadCAUnited States92010
Architect
RRM Design Group
Project Types
Shared By
mhutaff
Project Status
Built
Year Completed
2012
Size
45,501 ft²

Project Description

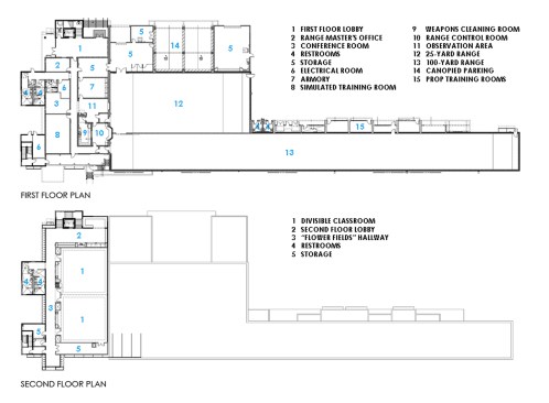
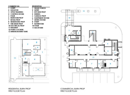
The 4 acre site features a main building with divisible training classrooms for up to 100 people and 25- and 100-yard indoor shooting ranges. Additionally, commercial and residential burn prop buildings enable safety personnel to train for a multitude of interior and exterior scenarios.

A monochromatic palette of materials such as concrete block, steel beams, cast-in-place concrete and various metals and plastic panels were chosen. A series of perforated metal screens act like a Policeman’s shield to protect the various elements of the building from the sun and elements.

Additionally, the design pays homage to the iconic flower fields of the city. Glass panels along the second floor hallway serve as the only true color in the project while also casting a series of colored light beams onto the adjacent walls and floors to help create a flower field within the building.

Upcoming Events

  • Slate Reimagined: The Surprising Advantages of Slate Rainscreen Cladding

    Webinar

    Register Now
  • The State of Residential Design Today: Innovations and Insights from RADA-Winning Architects

    Webinar

    Register for Free
  • Specifying Smarter with Copper-Clad Aluminum (CCA) Metal-Clad Cable

    Webinar

    Register for Free
All Events