Capitol Hill Co-Living

Project Details

Project Name
Capitol Hill Co-Living
Location
WashingtonDC
Project Types
Multifamily
Shared By
Teass Warren
Project Status
Built
Year Completed
2021
Style
Modern
Size
18,500 ft²

Project Description

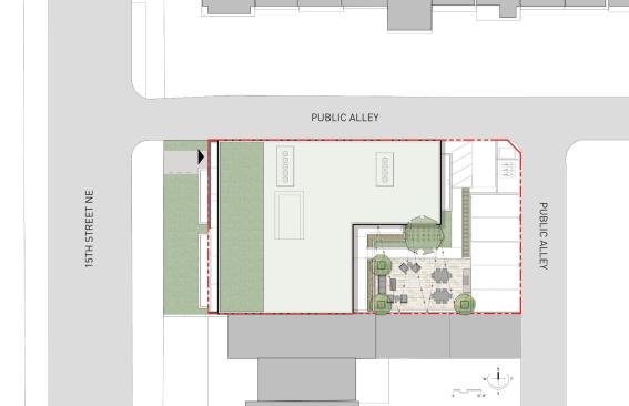
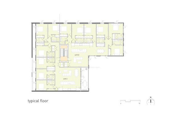
This project incorporated a significant addition and conversion of a former retail building that was being used for church services into eight dramatic new co-living units. Each unit contains six, en-suite bedrooms with common living spaces. The project is envisioned as communal living for young professionals who enjoy the benefits of city living with its easy access to neighborhood amenities and public transportation. The communal aspect allows for a market rate affordability while still maintaining a high quality of living. We retained the existing facades to keep the street presence of the existing building, while modernizing and bringing a new life to an underutilized structure.

Upcoming Events

  • Design Smarter: Leveraging GIS, BIM, and Open Data for Better Site Selection & Collaboration

    Live Webinar

    Register for Free
  • Slate Reimagined: The Surprising Advantages of Slate Rainscreen Cladding

    Webinar

    Register Now
  • The State of Residential Design Today: Innovations and Insights from RADA-Winning Architects

    Webinar

    Register for Free
All Events