Project Description
12,000 sf addition |10,000 sf renovation | multi-purpose meeting rooms | student ID offices | TV | game lounge | food court | informal commons| email stations|information desk | scholar’s study mezzanine | group study rooms
Objective: The State University of New York at New Paltz needed to expand its 1970 Student Union building by providing informal gathering spaces for students. The existing building was designed as a cellular office building and did not have ample space for student gathering. In addition, the University wished to change the overall experience of the existing building which conveyed an uninspired functional appearance at the gateway to the university.
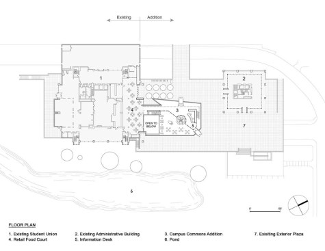
Solution: The Campus Commons project at The State University of New York is a steel and glass ‘winter garden’ addition to an existing 1970 student union building. The Campus Commons in filled and spanned over an existing underutilized exterior courtyard, transforming the exterior space into a vibrant interior university living room. The Campus Commons houses a large space for informal gathering, multi-purpose meeting rooms, food court, student ID offices, bookstore, entertainment center and meeting rooms.
Inspired by the regional landscape of the Catskill Mountains, the form and shape of the Commons is abstracted from the Shawangunk ridge, a local internationally known rock climbing palisade that can be seen from the site and is a unique and special physical characteristic of the University’s location. In order to span over the existing courtyard with a column free enclosure for future flexibility, we designed a structural tube stress skin system that created the angular forms of the pavilion that metaphorically references the Shawangunk ridge. Uniform 4 inch square structural tubes shop fabricated in large planar sections were erected on site like a giant origami assembly. In order to resist the dead load and wind uplift on the roof, a 1” diameter stainless steel cable with 2” down rods were utilized to transform the stress skin on the horizontal roof plane into a truss. Ceramic fritted glass was placed on top of the stress skin to create the enclosure. The pattern of the ceramic frit is an abstracted digitized version of the tectonic plates of the Shawangunks. The final solution creates an exciting Campus Commons as a steel and glass ‘palisade’ set between two existing concrete brutalist buildings that transforms the entry gateway experience to the State University of New York at New Paltz with structural expressiveness.
The Commons is designed to achieve a LEED Silver certification by day light harvesting and views, radiant heating and cooling, recyclable materials and photo optic lighting controls.